成約済み


| 毎月返済額 | 管理費 | 修繕積立金 | その他 |
|---|---|---|---|
| 000,000 円 | 10,200 円 | 15,300 円 | 0 円 |
住宅ローン試算と毎月返済額
物件価格の3,499万円を、金利0.875%、借入期間35年で借入したとすると
毎月返済額000,000円となります。
※借入条件は、金融機関によって異なります。
※参考数値ですので、上記の条件を保証するものではありません。
10年後のローン残高
0,000万円となります。
たとえば10年後…
仮に売却するとしたらいくらで売れると思いますか?
ゼロアパはこのような考え方も大切にしています。
※借入れ条件に変更がないことが前提です。
- 築年月
- 昭和45(1970)年5月
- 専有面積
- 49.68㎡
- 土地権利
- 所有権
- 構造
- RC(鉄筋コンクリート)造
- 所在階
- 2階/7階建
- 総戸数
- 27戸
- 施工会社
- 森島商事有限会社
- 管理会社
- 株式会社菱サ・ビルウェア
- 現況
- 空室
- 引渡し時期
- 相談
- 取引形態
- 媒介
- 特記事項
- 駐輪場:有
エレベーター:有
| 住所 | 東京都世田谷区松原6-4-5 |
|---|---|
| 交通 | 小田急線「梅ヶ丘駅」 徒歩2分 東急世田谷線「山下駅」 徒歩10分 京王井の頭線「東松原駅」 徒歩11分 |
小田急線「梅ヶ丘駅」徒歩2分、東急世田谷線「山下駅」徒歩10分、京王井の頭線「東松原駅」徒歩11分。
3路線、3駅が利用可能で都心へのアクセス良好、緑豊かな羽根木公園へも徒歩2分と、恵まれた環境のヴィンテージマンションをご紹介します。
マンションの立地は、赤堤通りと区役所西通りが交わる交差点の近くです。
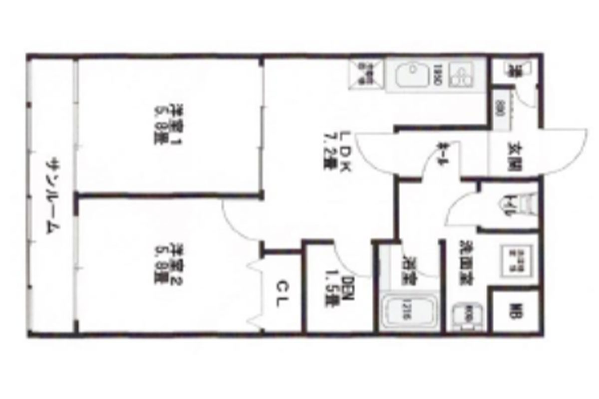
お部屋は2階で赤堤通りに面していますが、バルコニーを覆ってサンルームにすることで、環境音を軽減し、公道からの目隠し対策になっています。
サンルームには、柔らかい光が拡散して入ってきますので、気候の良い時期には窓を開けて風の通りを、寒い季節には陽だまりを楽しむことができそう。
エアコンの室外機置場を仕切るドアが設置されていますので、見た目もすっきりとしています。
室内は2LDKで、生活動線が考えられた使いやすい設計になっています。
洋室のスライドドアを開ければ、約13帖の広々としたLDKとして利用でき、約1.5帖のDENはワーキングスペースとしても活用可能。さまざまな生活スタイルに柔軟に対応できそうです。
洗面エリアにもじゅうぶんな広さがあり、作業効率も上がりそうです。小窓から自然光が入り、通風も良好です。
玄関奥の物入と、ちょっとした空きスペースも嬉しいポイント。ストックやシーズンアイテムの収納に使ったり、オープンクローゼットとして活用したりと、便利な空間として重宝しそうです。
全体を白やグレー、ベージュでまとめたカラーリングの内装も、スタイリッシュで好印象でした。
梅が丘駅周辺にはスーパーや自然食品店、ドラッグストア、生活雑貨を扱うお店のほか、洋菓子店、ビストロ、居酒屋といった飲食店、有名な江戸前寿司の本店も並んでいます。
近隣の羽根木公園、北沢川緑道は自然豊かなお散歩コース。少し足を延ばせば、豪徳寺、世田谷城址公園があり、緑に恵まれた環境です。
交通、生活の利便性と、豊かな自然。世田谷らしい暮らしを満喫できそうです。












































