成約済み


| 毎月返済額 | 管理費 | 修繕積立金 | その他 |
|---|---|---|---|
| 000,000 円 | 14,620 円 | 8,730 円 | 0 円 |
住宅ローン試算と毎月返済額
物件価格の5,690万円を、金利0.875%、借入期間35年で借入したとすると
毎月返済額000,000円となります。
※借入条件は、金融機関によって異なります。
※参考数値ですので、上記の条件を保証するものではありません。
10年後のローン残高
0,000万円となります。
たとえば10年後…
仮に売却するとしたらいくらで売れると思いますか?
ゼロアパはこのような考え方も大切にしています。
※借入れ条件に変更がないことが前提です。
- 築年月
- 昭和44(1969)年6月
- 専有面積
- 50.76㎡
- 土地権利
- 所有権
- 構造
- SRC(鉄骨鉄筋コンクリート)造
- 所在階
- 10階/11階建
- 総戸数
- 126戸
- 管理会社
- 日本ハウズイング株式会社
- 現況
- 空室
- 引渡し時期
- 相談
- 取引形態
- 媒介
- 特記事項
- 駐車場:有 ※外部所有につき別管理(22,000円〜41,000円/月)
駐輪場:有(1,000円/月)
バイク置場:有(5,000円/月)、原付(3,000円/月)
ペット飼育:不可
| 住所 | 東京都世田谷区池尻3-1-1 |
|---|---|
| 交通 | 東急田園都市線「池尻大橋駅」 徒歩1分 |
田園都市線「池尻大橋駅」北口を出てすぐのリノベーションマンションをご紹介いたします。
池尻大橋駅は、渋谷駅から1駅3分。北口から地上に出ると、ほぼ目の前が本物件のエントランスです。さらに、駅出口の隣に渋谷駅行きのバス停があり、数分間隔でバスが運行していて、交通の便がとても良い立地です。渋谷・中目黒近辺の勤務先であれば、徒歩通勤も可能。スーパーや飲食店などもひと通り揃っていますので、国道246号線、首都高速道路が気にならないようであれば、抜群の利便性です。
今回ご紹介のマンションは、1969年築のヴィンテージマンションではありますが、2022年に大規模修繕工事が行われ、エントランスはリニューアル済。共用部も清潔に保たれていました。
お部屋は10階。取材した日は、リノベーション工事が完了したばかりでした。
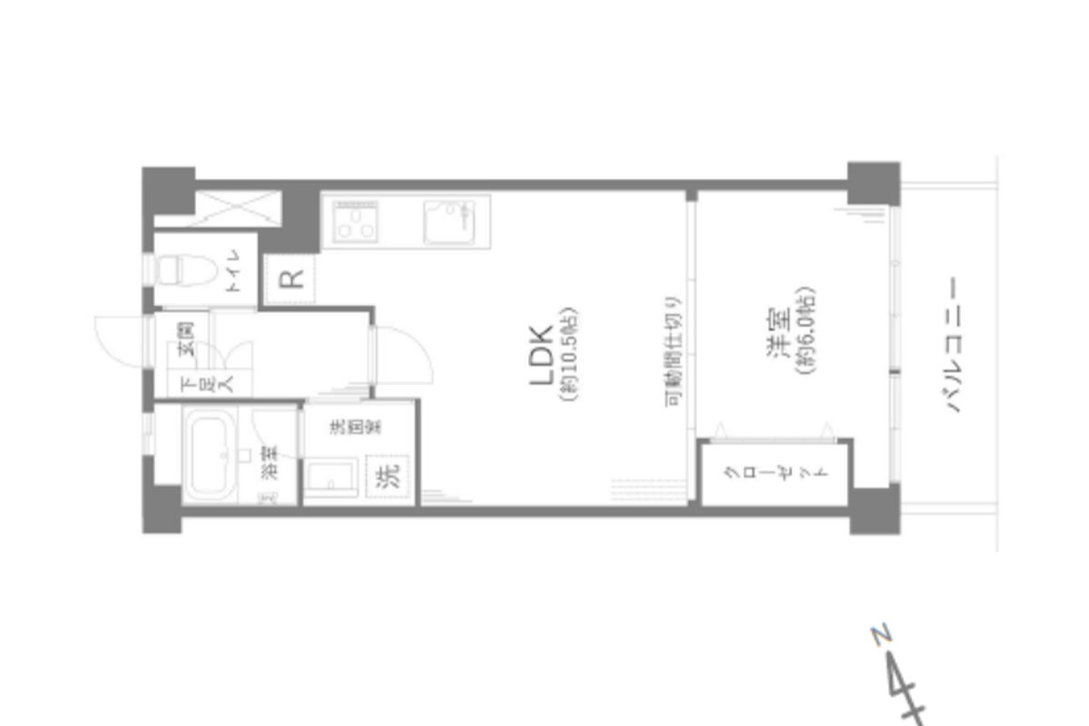
間取りは、50.76㎡の1LDK。ゆったりと家具を配置できそうなほど広々としていました。
部屋の中間に可動式パーテーションがあり、畳んでおけば広い1ルームとして、使用すればリビングと寝室をわけることが可能。テレワークが多いお仕事であれば、リモート会議時の目隠しとしても重宝しそうです。大容量のクローゼットが1つ、玄関収納も設置されていて、収納に配慮されていました。
忙しいときに便利な浴室乾燥機、キッチンには食洗機や浄水器付水栓など、日常を便利にしてくれる設備は揃っていました。バルコニーからの眺望は、THE都会。1階に駐車場があるため、周辺のビルとは密接しておらず、閉塞感は感じなかったので、夜バルコニーで仕事終わりの一杯なんてことも楽しめそうでした。
周辺には、駒場公園方面から伸びている「みどりの遊歩道」、大橋ジャンクション屋上にある「目黒天空庭園」、東山公園や世田谷公園があり、癒しスポットも点在。都会らしさばかりではないのが池尻大橋の魅力。
利便性を一番に重視したいという方にはおすすめの物件です。
ペット飼育:不可







































