成約済み


| 毎月返済額 | 管理費 | 修繕積立金 | その他 |
|---|---|---|---|
| 000,000 円 | 9,040 円 | 10,100 円 | 0 円 |
住宅ローン試算と毎月返済額
物件価格の6,980万円を、金利0.675%、借入期間35年で借入したとすると
毎月返済額000,000円となります。
※借入条件は、金融機関によって異なります。
※参考数値ですので、上記の条件を保証するものではありません。
10年後のローン残高
0,000万円となります。
たとえば10年後…
仮に売却するとしたらいくらで売れると思いますか?
ゼロアパはこのような考え方も大切にしています。
※借入れ条件に変更がないことが前提です。
- 築年月
- 平成14(2002)年6月
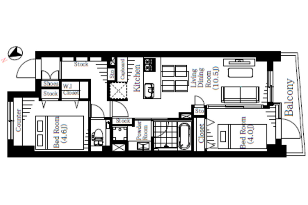
- 専有面積
- 45.90㎡
- 土地権利
- 所有権
- 構造
- RC(鉄筋コンクリート)造
- 所在階
- 2階/5階建
- 総戸数
- 31戸
- 施工会社
- 川田工業株式会社
- 管理会社
- 日本ハウズイング株式会社
- 現況
- 空室
- 引渡し時期
- 相談
- 取引形態
- 媒介
- 特記事項
- 自転車置場:無償(1住戸1台)
バイク置場:月額500円/台
駐車場:月額30,000円/台
※空き状況は管理会社へ要問い合わせ
ペット飼育:可(1住戸2匹まで)
エレベーター:有
宅配ボックス:有
オートロック:有
| 住所 | 東京都世田谷区玉川台2−22−1 |
|---|---|
| 交通 | 東急田園都市線「用賀駅」 徒歩2分 |
田園都市線「用賀駅」から歩いて2分、ペットと暮らせるリノベーション物件をご紹介いたします。
用賀は、渋谷まで最短12分でダイレクトにアクセスできる利便性の高い駅。世田谷らしい落ち着いた住環境が両立したエリアです。駅周辺には、FUJIスーパーやオーケーストア、お弁当や総菜が豊富な東急フードステーションなど、日常使いに便利なスーパーが点在しています。ドラッグストア、いろいろなジャンルの飲食店もたくさんあり、生活のしやすさが用賀の魅力です。
駅から少し離れると、閑静で整った街並みが続く穏やかな雰囲気。徒歩圏には「砧公園」や「世田谷美術館」をはじめとした豊かな自然・文化スポットがあるので、ジョギングが趣味の方にもおすすめ。都心へのスムーズな移動と穏やかな生活環境を兼ね備えた用賀は、働きざかりの若い世代からファミリー層まで幅広く支持を集めるエリアです。
ご紹介のマンションへは、南口から瀬田交差点方面へまっすぐ歩いて2分。
お部屋は2階、45.90㎡の2LDK。玄関を入ると、廊下の壁面全体がディスプレイウォールラックになっていました。ここに写真やお気に入りの雑貨などを置けば、さらにお気に入りの空間になりそうです。
リビングは、木目に黒のアクセントや照明が効いてスタイリッシュなデザイン。リビングと洋室の間仕切り扉を開ければ、ゆったりしたリビングとしても使用可能です。収納が豊富で、玄関から近い洋室にはウォークインと通常タイプのクローゼット、もう一方の洋室とリビング、ちょっとした空間にも収納があり、コンパクトながらすっきりとした空間を保つための配慮を感じました。
キッチンは利便性と視認性を重視したペニンシュラカウンターキッチン。収納力高めのカップボードも備え付けられているので買い足さなくてもよく、お部屋の雰囲気そのままのキッチンとなっていました。
室内は12月初旬にリノベーション工事が完了したばかり。ガス3口コンロ付きのシステムキッチン、追い焚き・乾燥機付きのバスルーム、クロス・建具・フローリングなども一新されていました。エアコンも1台すでに設置されていますので、気持ちよく新生活がスタートできそうです。
ひとり暮らしで仕事とプライベート空間をわけたい方、ふたり暮らしならぴったりサイズ。小さなお子様のいるファミリーであれば快適に過ごせるサイズ感です。
何よりも、とにかく駅近。生活しやすい環境が揃った魅力あふれる物件のご紹介でした。
ペット飼育:可(1住戸2匹まで)


















































