販売価格4,299万円
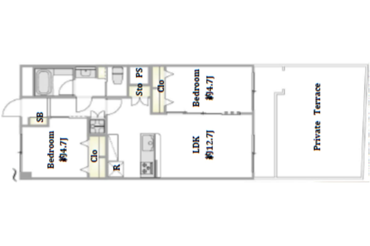
間取り2LDK
専有面積52.52㎡


| 毎月返済額 | 管理費 | 修繕積立金 | その他 |
|---|---|---|---|
| 000,000 円 | 15,800 円 | 19,960 円 | 0 円 |
住宅ローン試算と毎月返済額
物件価格の4,299万円を、金利0.875%、借入期間35年で借入したとすると
毎月返済額000,000円となります。
※借入条件は、金融機関によって異なります。
※参考数値ですので、上記の条件を保証するものではありません。
10年後のローン残高
0,000万円となります。
たとえば10年後…
仮に売却するとしたらいくらで売れると思いますか?
ゼロアパはこのような考え方も大切にしています。
※借入れ条件に変更がないことが前提です。
- 築年月
- 昭和54(1979)年9月
- 専有面積
- 52.52㎡
- 土地権利
- 所有権
- 構造
- RC(鉄筋コンクリート)造
- 所在階
- 1階/3階建
- 総戸数
- 29戸
- 施工会社
- 島藤建設工業株式会社
- 分譲会社
- 日栄開発株式会社
- 管理会社
- 株式会社東急コミュニティー
- 現況
- 空室
- 引渡し時期
- 相談
- 取引形態
- 媒介
- 特記事項
- 敷地内駐車場:有/空有 月額19,000円
駐輪場:有/空有 無償
バイク置場:有/空有 月額1,000~1,500円
※空き状況要確認
エレベーターなし
アフターサービス保証
| 住所 | 東京都世田谷区上用賀5-3-9 |
|---|---|
| 交通 | 東急田園都市線「用賀駅」 徒歩7分 |
田園都市線「用賀駅」徒歩7分のヴィンテージマンションをご紹介します。
用賀駅は渋谷駅から15分前後、横浜方面へもアクセスしやすく、通勤・通学にも便利な駅です。
本物件へは、駅北口を出て、「用賀プロムナード」を通り、西用賀通りを渡って向かいます。
周辺には、戸建て住宅とマンションが並ぶ、閑静な住宅街が広がっています。環八通りや高速道路の入り口にも近いので、車の利用が多い方にも便利な立地です。
マンションは1979年築、白い外壁と植栽のグリーンが印象的な建物です。
お部屋は1階、東向き、専用庭付き。お庭の広さは約30㎡、お手入れしやすい、ちょうど良い広さです。
スイセンやアジサイなど季節の花々が植えてあり、少し手をかけてあげれば、元気に咲き誇ってくれそうです。
間取りは2LDK、リビングと隣の部屋のスライドドアを開放して、広々とした1LDKとしても利用することができます。
ランドリースペースを廊下に配置して洗面スペースを広く取り、生活しやすい動線が整えられているところも特長です。
食洗機・浄水器、浴室乾燥機・追焚機能など、便利な設備もそなえています。
東向きのお部屋は、一般的に、早い時間から朝日が差し込むため、寒い季節には朝の冷え込みをやわらげ、夏は比較的涼しいといわれています。
取材時も底冷えのする日でしたが、ほんのりと温もりが感じられました。
白と優しいベージュを基調としたカラーリングもあいまって、穏やかで落ち着いた居住空間になっています。
生活面では、駅周辺に大型スーパーが数店舗、なかには深夜まで営業しているお店もありますので、忙しい方にも便利な環境です。
様々なジャンルの飲食店も多く、銀行や区の出張所など、生活に必要な施設も揃っていて、暮らしやすい街です。
「用賀プロムナード」は、用賀駅から世田谷美術館まで約1km続く遊歩道で、世田谷区の地域風景資産にも選ばれています。
木々に囲まれた道の足元には瓦が敷かれ、百人一首が刻まれており、多彩な瓦の意匠とともに楽しむことができます。
かつて大山道の宿場町として栄えた用賀の歴史を、さりげなく感じられる散策スポットになっています。
緑豊かな砧公園は、マンションから徒歩7分ほど。西用賀通りは、春になると、見事な桜並木に彩られます。
利便性の高さに加え、身近に自然が広がる、恵まれた住環境です。





































