販売価格6,799万円
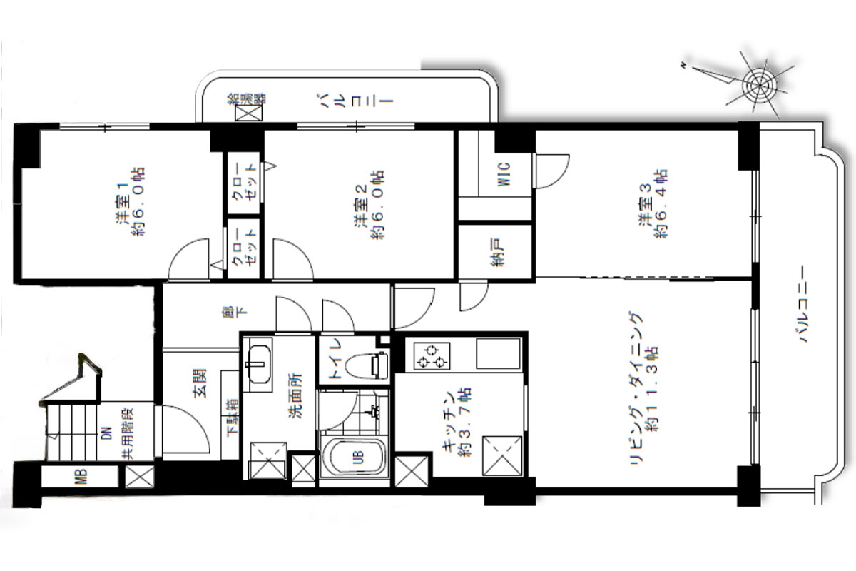
間取り3LDK
専有面積75.49㎡


| 毎月返済額 | 管理費 | 修繕積立金 | その他 |
|---|---|---|---|
| 000,000 円 | 25,480 円 | 3,920 円 | 0 円 |
住宅ローン試算と毎月返済額
物件価格の6,799万円を、金利0.675%、借入期間35年で借入したとすると
毎月返済額000,000円となります。
※借入条件は、金融機関によって異なります。
※参考数値ですので、上記の条件を保証するものではありません。
10年後のローン残高
0,000万円となります。
たとえば10年後…
仮に売却するとしたらいくらで売れると思いますか?
ゼロアパはこのような考え方も大切にしています。
※借入れ条件に変更がないことが前提です。
- 築年月
- 昭和52(1977)年9月
- 専有面積
- 75.49㎡
- 土地権利
- 所有権
- 構造
- RC(鉄筋コンクリート)造
- 所在階
- 4階/4階建
- 総戸数
- 28戸
- 施工会社
- 株式会社長谷川工務店
- 分譲会社
- 日興不動産株式会社
- 管理会社
- 東京互光株式会社
- 現況
- 空室
- 引渡し時期
- 相談
- 取引形態
- 媒介
- 特記事項
- ペット飼育:不可
駐車場:月額16,000~20,000円(空き状況要確認)
バイク置場:利用料なし(特定の空きスペースに駐輪)
自転車置場:利用料なし(特定の空きスペースに駐輪)
TV共聴設備:CATV方式(イッツコム)
インターネット設備:イッツコム(個別契約)※導入時は理事長の承認が必要)
宅配ボックス:有
事務所利用:不可
住宅宿泊事業:不可
エレベーター:無
| 住所 | 東京都世田谷区上用賀3-13-22 |
|---|---|
| 交通 | 東急田園都市線「用賀駅」 徒歩10分 |
田園都市線「用賀駅」徒歩10分のヴィンテージマンションをご紹介します。
マンションは1977年築、白い外壁が印象的な、きれいな外観の建物です。
エントランスや共用部も清潔感があり、内廊下のヴィンテージ感も良い雰囲気。管理体制の良さ、居住者様の丁寧な暮らしを感じるマンションです。
ご紹介するお部屋は、最上階4階の角住戸です。棟ごとに階段が設置されているので、このフロアにはこちらの1住戸のみ。特別感があります。
南東向きのバルコニーからは、用賀駅方面、丹沢の山並み、さらにその奥にそびえる富士山まで見渡すことができます。
日当たりも風通しも良好。白とやわらかなベージュを基調としたカラーリングもあいまって、明るく爽やかな居住空間が広がっています。
設備面では、食洗機・浄水器付きのシステムキッチン、乾燥・追い炊き機能を備えたユニットバス、シャワー水栓・ミラーキャビネット付きの洗面化粧台など、高品質・高性能の設備に一新されています。
フローリングやフロアタイル、建具もすべて新しく交換され、快適な生活環境が整っています。
富士山も望める最上階の角住戸、二面バルコニーで自然光にも恵まれ、設備面も充実。
最寄り駅は人気の用賀、しかも徒歩10分圏内で、住環境も良いエリアと、魅力的な条件が揃った本物件、チェックポイントは2点です。
まずは、エレベーターがないところ。内階段で、窓もあり、足元は明るく歩きやすいですが、4階までの上り下りは、それなりに体力が必要です。
もうひとつは、用賀中町通りに面しているため、車の走行音が聞こえることです。
階段の上り下りと、交通量多めの環境音を生活の一部として受け入れられるかどうか、現地でしっかり確認することをおすすめいたします。
本物件から「用賀駅」までは、用賀の美しい住宅街を通って向かうルートがおすすめです。
ほぼ真っ直ぐで歩きやすい道路になっていて、瀟洒な戸建て住宅が並び、お庭やマンションの植栽など緑も多いので、歩いているだけでリラクゼーション効果を感じるような、清々しい街並みを楽しむことができます。
渋谷まで15分前後と都心に近い駅ながら、緑豊かで、地上に出ると、ホッと和むところも魅力のひとつです。
スーパーやカフェ、銀行ATMなどが揃う便利な駅ビルに加え、駅周辺にもスーパーが数店舗、様々なジャンルの飲食店も多く、お買い物も食事もじゅうぶんに楽しめます。
穏やかな雰囲気の商店街が広がり、区の出張所など生活に必要な施設も揃っていて、暮らしやすい街です。
本物件からは、緑豊かな馬事公苑、砧公園も徒歩圏内です。美しい街並みに豊かな自然、高い利便性がそなわった、とてもぜいたくな環境です。
ペット飼育:不可















































