販売価格5,990万円
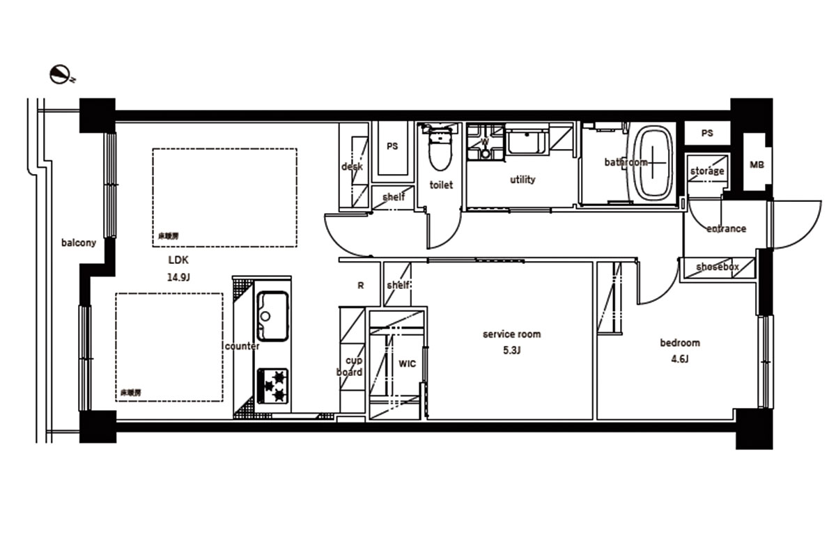
間取り1LDK+S
専有面積60.86㎡


| 毎月返済額 | 管理費 | 修繕積立金 | その他 |
|---|---|---|---|
| 000,000 円 | 9,740 円 | 15,220 円 | 0 円 |
住宅ローン試算と毎月返済額
物件価格の5,990万円を、金利0.875%、借入期間35年で借入したとすると
毎月返済額000,000円となります。
※借入条件は、金融機関によって異なります。
※参考数値ですので、上記の条件を保証するものではありません。
10年後のローン残高
0,000万円となります。
たとえば10年後…
仮に売却するとしたらいくらで売れると思いますか?
ゼロアパはこのような考え方も大切にしています。
※借入れ条件に変更がないことが前提です。
- 築年月
- 昭和53(1978)年1月
- 専有面積
- 60.86㎡
- 土地権利
- 所有権
- 構造
- RC(鉄筋コンクリート)造
- 所在階
- 2階/4階建
- 総戸数
- 29戸
- 施工会社
- 株式会社青木建設
- 管理会社
- 株式会社東急コミュニティー
- 現況
- 空室
- 引渡し時期
- 相談
- 取引形態
- 媒介
- 特記事項
- 駐車場:有(空き無、すべて特定の住戸専用使用権)
駐輪場:有(空き有、月額300円)
バイク置場:無
ペット飼育:不可
事務所利用:不可
エレベーター:無
オートロック:無
フラット35適合物件
2018年大規模修繕工事実施
床暖房(LD部分)
| 住所 | 東京都世田谷区用賀4-30-17 |
|---|---|
| 交通 | 東急田園都市線「用賀駅」 徒歩5分 |
田園都市線「用賀駅」から歩いて5分のヴィンテージマンションをご紹介いたします。
用賀駅は、東急田園都市線の各駅停車と準急が止まり、渋谷まで最短12分でダイレクトにアクセスできる利便性の高い駅。世田谷らしい落ち着いた住環境が両立したエリアです。
駅周辺には、FUJIスーパーやオーケーストア、お弁当や総菜が種類豊富な東急フードステーションなど、日常使いに便利なスーパーが点在しています。多種多様な飲食店のほか、ドラッグストア、銀行ATMなど生活便利施設が充実。
駅から少し離れると、閑静で整った街並みが続く穏やかな雰囲気。都心へのスムーズな移動と穏やかな生活環境を兼ね備えた用賀は、幅広い世代から支持を集めるエリアです。
マンションへは、駅北口を出て北西方面へ進みます。薬局と食パン専門店の間の道を左折、用賀三条通りを少し歩くと到着です。商店街の中を歩くので、道中買い物ができるので便利ですね。
今回ご紹介のお部屋は2階。エレベーターがないので階段で上がります。昭和53年築のヴィンテージマンションですが、外観・共用部ともに清潔に保たれていました。
間取りは1LDK+サービスルーム付ですが、専有面積は60.86㎡、人数にもよりますがファミリーでも快適に過ごすことが可能な広さだと思います。日当たりはとても良いとまでではなかったのですが、日差しを感じられる明るいリビングでした。
室内はリノベーション済み。フローリング・壁クロスが張り替えられているため、古さは気になりませんでした。リビングには、ワークスペースとなるデスクと棚がすでに備わっています。自宅でパソコンをよく使う場合、置き場所に困り、結局ダイニングテーブルにずっと出しっぱなしになってしまうということありますよね。場所もちょうどよく、これはとてもうれしい設備。そして、ヴィンテージマンションには設置されていることが少ない床暖房がリビング・ダイニングエリアに備わっています。
その他設備としては、システムキッチンには食洗機や浄水器付き、ユニットバスには追焚・浴室乾燥機能付きとなっています。収納にも配慮された設計で、玄関にはシューズクローゼットの反対側に扉付の棚があり、トイレ横にも棚がありました。お掃除ロボット基地にもピッタリです。各洋室にはエアコンも設置されていたので、快適に新生活をスタートできそうですね。
用賀駅徒歩5分という利便性、リノベーションの快適性、ヴィンテージの味わいを兼ね備えたおすすめのマンションです。
ペット飼育:不可
エレベーター:無












































