販売価格6,680万円
間取り3LDK
専有面積76.67㎡


| 毎月返済額 | 管理費 | 修繕積立金 | その他 |
|---|---|---|---|
| 000,000 円 | 12,800 円 | 28,700 円 | 300 円 |
住宅ローン試算と毎月返済額
物件価格の6,680万円を、金利0.675%、借入期間35年で借入したとすると
毎月返済額000,000円となります。
※借入条件は、金融機関によって異なります。
※参考数値ですので、上記の条件を保証するものではありません。
10年後のローン残高
0,000万円となります。
たとえば10年後…
仮に売却するとしたらいくらで売れると思いますか?
ゼロアパはこのような考え方も大切にしています。
※借入れ条件に変更がないことが前提です。
- 築年月
- 平成13(2001)年5月
- 専有面積
- 76.67㎡
- 土地権利
- 所有権
- 構造
- RC(鉄筋コンクリート)造
- 所在階
- 2階/8階建
- 総戸数
- 92戸
- 施工会社
- 株式会社大林組
- 管理会社
- 野村不動産パートナーズ株式会社
- 現況
- 空室
- 引渡し時期
- 相談
- 取引形態
- 媒介
- 特記事項
- その他費用内訳:受入防災委員会費 月額300円
駐車場:有(空有:月額16,000円~20,000円)※2026年使用料変更予定
駐輪場:有(空有:月額100円)
バイク置場:有(空有:月額1,000円)
オートロック、宅配ボックス:有
ペット飼育:可(成獣時体高30㎝以下の小型犬猫、1住戸2頭まで)※管理規約に基づく
大規模修繕予定(検討中、2030年)
床暖房有(LDK部分)
| 住所 | 神奈川県川崎市高津区梶ヶ谷3‐1-1 |
|---|---|
| 交通 | 東急田園都市線「梶が谷駅」 徒歩6分 |
東急田園都市線「梶が谷駅」から徒歩6分、リノベーションマンションをご紹介します。
梶が谷駅は、渋谷から各駅停車で約20分。半蔵門線直結で、表参道・大手町方面へ乗り換えなしでアクセスできます。隣駅はJR南武線と東急大井町線も利用できる溝の口。人気の二子玉川駅やたまプラーザ駅へも近く、通勤通学はもちろん、休日のお出かけやショッピングにも便利な駅です。
駅周辺には、スーパーの東急ストア、ケーキ屋さん・持ち帰りのお寿司屋さんのほか、ドラッグストアが数店舗あり、カフェもありますので普段のお買い物には問題なさそう。個人経営の個性的な飲食店も歩いていると結構ありますよ。徒歩圏内に大型家電量販店があるのもなにかと助かります。遊具が多い梶が谷第1公園はいつも子供たちで賑わっていて、クリニックも多数、日曜やっている内科もありますので、小さなお子さんがいるご家庭が安心して暮らせるエリアです。
ご紹介のマンションへは、駅出口を出て右へ進み、郵便局より少し先のコンビニと銀行がある交差点の角地に建っています。駅から徒歩6分なので、毎日通勤通学される方でも負担を感じにくい距離感ですよね。
お部屋は2階、坂の途中にあるためエントランスと同階層、階段の上り降りはありません。
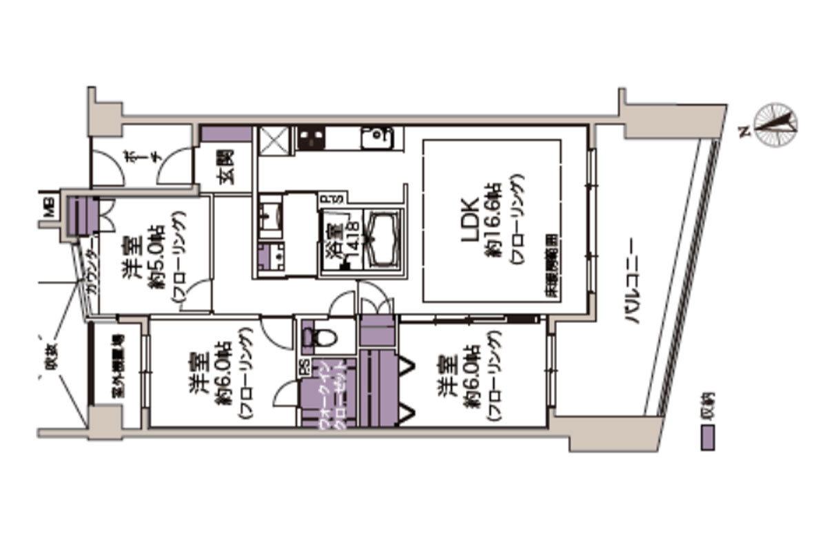
間取りは76.67㎡の3LDK。リビングに入ると、天井が高めに設定されているからか、平米数以上に広々と感じました。2階ではあるものの日当たりは良好。バルコニーは18.86㎡と一般的なマンションに比べると広く、洗濯物を干したり、テーブルセットを置いても余裕がありそうでした。
家事動線に配慮された設計で、洗面・浴室部分がお部屋の真ん中に配置されていて、廊下側とキッチン側の両側から出入りできます。動線が良く、空気が通りやすいので、湿気がたまりやすいバスルームの掃除の負担が軽くなりそうです。
室内はリフォーム済みで、フローリング、クロス、建具など交換済み、アフターサービスが保証されています。設備面では、食洗機付きのシステムキッチン、浴室換気乾燥機付きのユニットバス、トイレや洗面台もリフォーム時に交換されています。LDK部分には床暖房がありますので、冬場の空調が苦手な場合でも快適に過ごせそうでした。
取材に伺った日、管理人さんは見回りや出入りの人をしっかり確認されていて、熱心に管理されている印象を受けました。マンションの共用部はとても清潔。管理状態が良いのは、住まいを検討する上でとても重要なポイントです。
規約に則ればペット飼育可能。駐車場などの付帯施設にも空きがあります(2025年12月中旬時点)。中古マンションの場合、施設はあっても空きなしのことが多く、ご利用前提でお探しの方にはぜひおすすめしたいマンションです。
ペット飼育:可(成獣時体高30㎝以下の小型犬猫、1住戸2頭まで)※管理規約に基づく













































