成約済み


| 毎月返済額 | 管理費 | 修繕積立金 | その他 |
|---|---|---|---|
| 000,000 円 | 10,500 円 | 15,330 円 | 0 円 |
住宅ローン試算と毎月返済額
物件価格の4,780万円を、金利0.875%、借入期間35年で借入したとすると
毎月返済額000,000円となります。
※借入条件は、金融機関によって異なります。
※参考数値ですので、上記の条件を保証するものではありません。
10年後のローン残高
0,000万円となります。
たとえば10年後…
仮に売却するとしたらいくらで売れると思いますか?
ゼロアパはこのような考え方も大切にしています。
※借入れ条件に変更がないことが前提です。
- 築年月
- 昭和52(1977)年9月
- 専有面積
- 65.50㎡
- 土地権利
- 所有権
- 構造
- RC(鉄筋コンクリート)造
- 所在階
- 1階/3階建
- 総戸数
- 86戸
- 施工会社
- 株式会社長谷川工務店
- 管理会社
- 株式会社東急コミュニティー
- 現況
- 空室
- 引渡し時期
- 相談
- 取引形態
- 媒介
- 特記事項
- 管理費:2026年4月より月額13,100円へ変更予定
駐車場:無
駐輪場:有、月額200円~300円/台
バイク置場:有、月額400円/台
ペット飼育:可(犬・猫のみ、1世帯1頭まで)
事務所利用:不可
| 住所 | 東京都世田谷区野毛3-18-3 |
|---|---|
| 交通 | 東急大井町線「上野毛駅」 徒歩12分 東急田園都市線・大井町線「二子玉川駅」 徒歩16分 |
人気の二子玉川が生活圏、ファミリー向けリノベーションマンションをご紹介します。
上野毛は、大井町線の各駅停車駅で二子玉川まで1駅、自由が丘や大井町方面へもスムーズにアクセスできます。駅周辺は落ち着いた住宅街、自然を感じられるスポットも身近にあり、住みやすいエリアとして人気の駅です。
二子玉川は、渋谷駅まで急行であれば約10分、各駅停車でも15分程度。バスも多く出ているので、お出かけなどの移動にとても便利です。駅周辺には、大型商業複合施設「二子玉川ライズ」や「玉川高島屋」、柳小路や路地裏にはおしゃれで個性的なお店が点在しています。スーパーやコンビニもあるため、日常生活のお買い物には困りません。
今回ご紹介のマンションは、上野毛リッツハウスC館。
A~Dまで全4棟、白を基調とした低層のヴィンテージマンションです。
二子玉川公園まで徒歩2分。自宅から近くに大きな公園があるのはファミリーにとってはうれしいポイントですよね。二子玉川公園は、小さなお子さんでも遊べる遊具、ただただ走れる広場、ボールが使用できるエリアなどがあり、休日になると多くの人で賑わいます。
最寄りの上野毛駅へは徒歩12分、正直毎日は負担になりそうな上り坂があります。二子玉川駅へはほぼフラットではあるものの、徒歩16分とそこそこの距離。マンション周辺を通る人を見ているとほとんどが二子玉川方面へ行くので、生活圏はそちらがメインになりそうですね。
お部屋は1階、公園に隣接した角住戸で玄関部分が独立しています。階段のような形の建物で、上階にお部屋はありません。なので上下階ともに足音を気にせず過ごすことができます。お子さんやペットがいる場合、これは気がラクですよね。
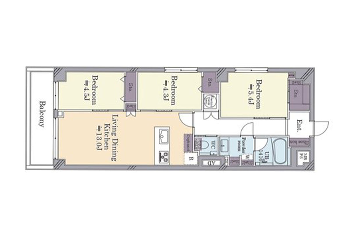
間取りは65.50㎡の3LDK。室内はリノベーション済みでクロス・フローリングともに交換済み、白色と木目が基調となっています。真っ白な外観、緑豊かな環境とよく馴染んでいました。各洋室には窓があり、隣の公園にいるご家族に声をかけることもできます。収納も備わっていました。
設備としては、食器洗い乾燥機付システムキッチン、浴室は追焚・換気乾燥暖房機能付きなど、毎日を便利にしてくれる設備が整っています。パウダールームは少しコンパクトだなと感じましたが、キュッとまとまっていて日々のお掃除はしやすそう。
立地、間取り、価格、どれをとっても魅力的な物件。
このエリアでファミリー向けマンションをお探しの方に、ぜひご検討いただきたい物件です。
ペット飼育:可能(犬・猫のみ、1世帯1頭まで)
2026年4月より管理費変更予定あり













































