成約済み


| 毎月返済額 | 管理費 | 修繕積立金 | その他 |
|---|---|---|---|
| 000,000 円 | 16,126 円 | 14,650 円 | 0 円 |
住宅ローン試算と毎月返済額
物件価格の5,490万円を、金利0.875%、借入期間35年で借入したとすると
毎月返済額000,000円となります。
※借入条件は、金融機関によって異なります。
※参考数値ですので、上記の条件を保証するものではありません。
10年後のローン残高
0,000万円となります。
たとえば10年後…
仮に売却するとしたらいくらで売れると思いますか?
ゼロアパはこのような考え方も大切にしています。
※借入れ条件に変更がないことが前提です。
- 築年月
- 昭和51(1976)年9月
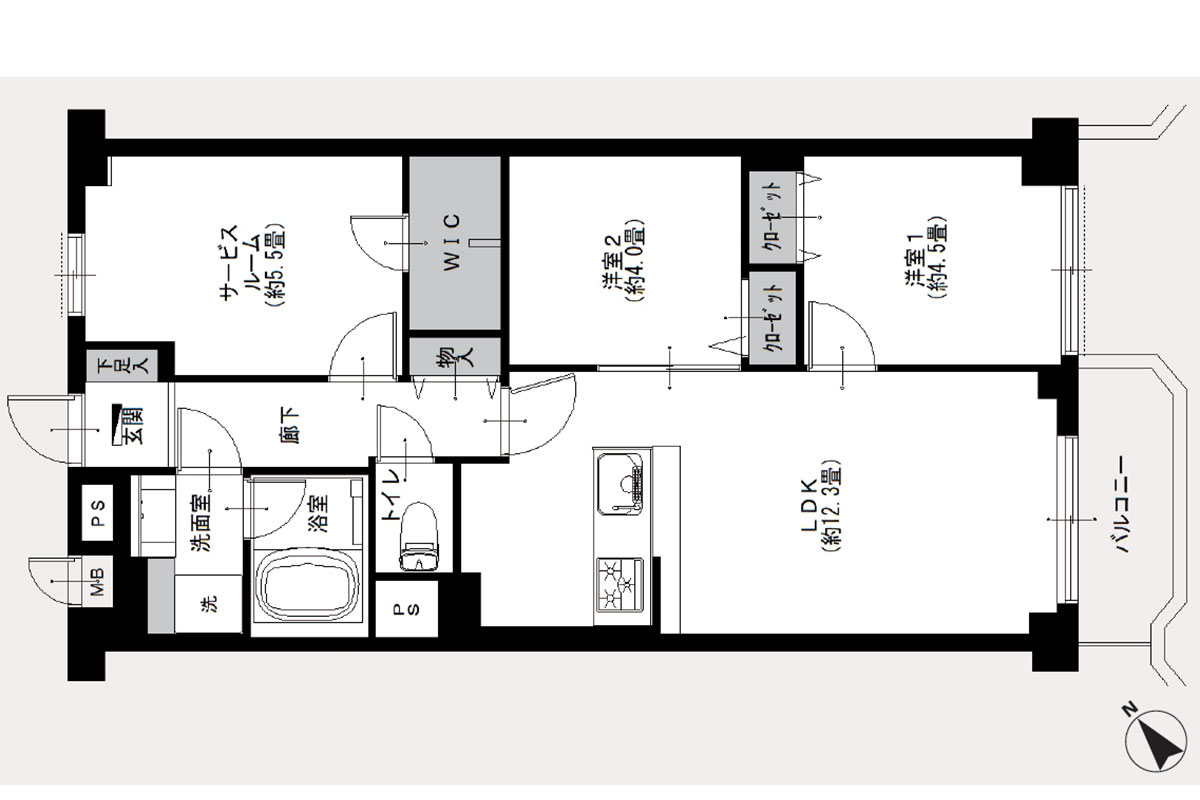
- 専有面積
- 60.50㎡
- 土地権利
- 所有権
- 構造
- RC(鉄筋コンクリート)造
- 所在階
- 5階/6階建
- 総戸数
- 43戸
- 施工会社
- 日興不動産株式会社
- 分譲会社
- 日興不動産株式会社
- 管理会社
- グローシップ株式会社
- 現況
- 空室
- 引渡し時期
- 相談
- 取引形態
- 媒介
- 特記事項
- ペット飼育:小鳥・観賞用魚のみ可(犬・猫、不可)
駐車場:敷地内有(月額17,000~22,000円)
駐輪場:敷地内有(月額200円)
バイク置場:敷地内有(月額1,000円)
エレベーター、防犯カメラ:有
インターネット対応
BS対応
アフターサービス保証付
| 住所 | 東京都世田谷区宮坂3-41-14 |
|---|---|
| 交通 | 小田急線「経堂駅」 徒歩10分 東急世田谷線「松原駅」 徒歩13分 |
小田急線「経堂駅」から徒歩10分のヴィンテージマンションをご紹介します。
赤堤通り沿いに位置しているので、周辺をよく利用される方ならおそらく見覚えのある建物です。
マンションの築年は1976年。定期的にメンテナンスが行われ、2024年には大規模修繕工事も完了しています。
築古マンションならではのしっかりした管理体制と、居住者様の丁寧な暮らしぶりが感じられる、雰囲気の良いマンションです。
お部屋は4階、南東向きで、日当たり、通風とも良好です。
世田谷の街並みを一望することができる眺望の良さも大きな魅力です。取材時は、うっすらと雪化粧した東京の風景を楽しむことができました。
さらに、外廊下からは、富士山も望めます。自宅からの景色が素晴らしいと、より快適に過ごせますね。
間取りは2LDK+S、リビングは住宅街側に面しているため、赤堤通りの走行音はほとんど気にならず、静かに過ごせるお部屋です。
白を基調としたさわやかな内装、たっぷりとさし込む自然光。心地良い居住空間が広がっています。
室内のリノベーションは、2025年12月に完了したばかりです。
水回りと全室のクロス・フローリング・建具、照明器具、モニター付きインターフォンが交換済みで、新築同様に快適です。
食洗機や浄水器、追焚き・浴室乾燥機能、LED照明など、最新の機能を備えているところも嬉しいポイントです。
フレンドリーな管理スタッフさんは、勤続10年のベテランで、周辺環境や設備関係にとても詳しい方です。近くのお店や施設探しから、室内でのちょっとした困りごとまで、気軽に相談できそうです。
入居したばかりで環境に慣れないときには、本当に心強い存在ですね。
「経堂駅」からマンションへは、「すずらん通り」を抜けて住宅街を通るのがいちばんの近道です。
1927年創業の履物店や3代続くパン工房など、何十年、何代と続く老舗と、新しい店舗が混在しているところが魅力で、学生さんの利用も多く、明るく賑やかな商店街です。個性的な文房具店、邦楽器店も有名です。
駅前には大型商業施設もありますので、生活の利便性は十分です。
小田急線急行なら「新宿駅」までわずか12分、東京メトロ千代田線にも直結していて、都心へのアクセスも抜群です。
マンションのエントランスすぐそばにバス停があるので、天気の悪い日でも移動が快適です。運行本数も多く、気軽に利用することができます。
マンション周辺には公園や緑道が点在し、緑が多いところも特長です。
少し足を延ばした先には、広大な敷地の「羽根木公園」。これからの季節は「せたがや梅まつり」も楽しみです。
ペット飼育:小鳥・観賞用魚のみ可(犬・猫、不可)














































