販売価格4,980万円
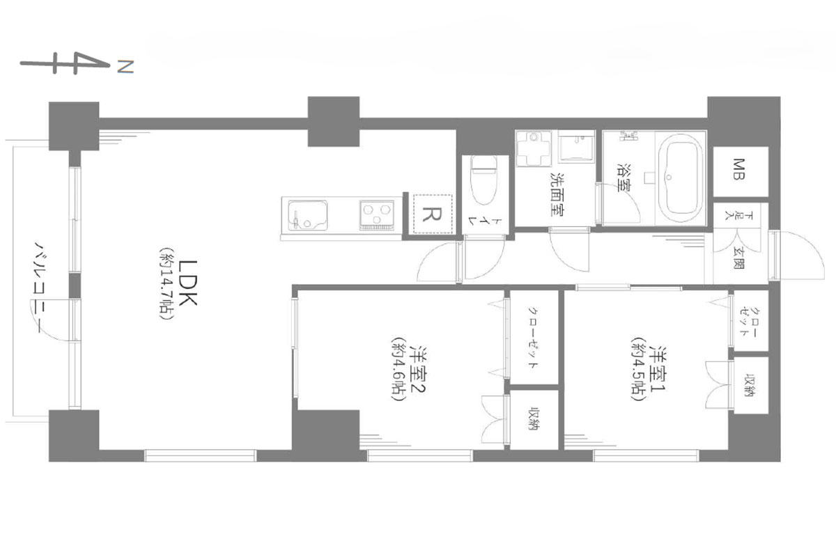
間取り2LDK
専有面積61.02㎡


| 毎月返済額 | 管理費 | 修繕積立金 | その他 |
|---|---|---|---|
| 000,000 円 | 19,268 円 | 17,760 円 | 0 円 |
住宅ローン試算と毎月返済額
物件価格の4,980万円を、金利0.875%、借入期間35年で借入したとすると
毎月返済額000,000円となります。
※借入条件は、金融機関によって異なります。
※参考数値ですので、上記の条件を保証するものではありません。
10年後のローン残高
0,000万円となります。
たとえば10年後…
仮に売却するとしたらいくらで売れると思いますか?
ゼロアパはこのような考え方も大切にしています。
※借入れ条件に変更がないことが前提です。
- 築年月
- 昭和53(1978)年9月
- 専有面積
- 61.02㎡
- 土地権利
- 所有権
- 構造
- SRC(鉄骨鉄筋コンクリート)造
- 所在階
- 9階/8階建
- 総戸数
- 29戸
- 管理会社
- 伊藤忠アーバンコミュニティ株式会社
- 現況
- 空室
- 引渡し時期
- 相談
- 取引形態
- 媒介
- 特記事項
- ペット飼育:不可(ただし、居室のみで飼育できる小動物は除く)
駐車場:有(20,000円/月)
駐輪場:有(100円/年)
バイク置場:有(300~1,000円/年)
※空き状況要確認
アフターサービス保証付
| 住所 | 東京都世田谷区南烏山3-25-11 |
|---|---|
| 交通 | 京王線「芦花公園駅」 徒歩4分 |
京王線「芦花公園駅」徒歩4分。
大きな窓から空を見上げ、やわらかな日ざしをたっぷり感じられるヴィンテージマンションをご紹介します。
マンションは1978年築、外観・共用部ともに年月を重ねた風合いを残しつつ、きれいに管理されています。
お部屋は8階の角住戸で、南向き。眺望、日当たり、通風がとても良く、気持ちの良いお部屋です。
バルコニーは住宅街側に面しているため、室内では環境音はそれほど気にならず、落ち着いて暮らせる空間になっています。
いちばんの魅力は、斜めの天井についた大きな窓。
自然光がふわっと広がり、白と木目調のシンプルなカラーリングとあいまって、明るく、さわやかな空間が広がっています。
リフォームでは、水まわりを交換、フローリング・クロス・タイルを張り替え済み。ハウスクリーニングも完了し、さっぱりと清潔感ある仕上がりになっています。
一方で、バルコニーのドアや洗濯フックなど、レトロなディテールがそのまま残っています。ヴィンテージ好きにはテンションが上がるポイントですね。
広い空、レトロ感が楽しめるさわやかな空間、ぜひ現地で魅力を体感していただきたいマンションです。
「芦花公園駅」は新宿から各駅停車で20分前後。
駅南側には、「ムットーニコレクション」などの展示で知られる「世田谷文学館」があります。
並木道にはスーパーやスポーツ施設、飲食店が建ち並び、生活利便性もしっかり。少し歩くと野菜や花の苗を購入できる農園もあり、長閑な空気感も漂います。
北側には旧甲州街道、甲州街道が通っていますが、街路樹が多く、歩道も整備されていて、歩きやすいエリアです。
ノスタルジックな雰囲気の商店街も魅力のひとつで、駅前の商店街、下町情緒漂うアーケード商店街、昭和レトロな家具店や青果店、書店など、懐かしさを感じる街並みが広がっています。
駅名にもなっている「蘆花恒春園」は、『不如帰』『自然と人生』などの名作で知られる明治・大正期の文豪、徳冨蘆花ゆかりの地。緑豊かな武蔵野の面影が残る広い都立公園で、季節の花が咲き誇り、春には桜と菜の花の共演も楽しめます。
豊かな自然と文化、現代の便利な暮らし、レトロな空気感が心地良く調和した街。心身共に和む暮らしが叶いそうです。
ペット飼育:不可(ただし、居室のみで飼育できる小動物は除く)















































