販売価格6,999万円
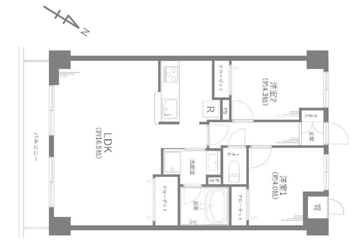
間取り2LDK
専有面積55.10㎡


| 毎月返済額 | 管理費 | 修繕積立金 | その他 |
|---|---|---|---|
| 000,000 円 | 14,900 円 | 16,530 円 | 1,000 円 |
住宅ローン試算と毎月返済額
物件価格の6,999万円を、金利0.675%、借入期間35年で借入したとすると
毎月返済額000,000円となります。
※借入条件は、金融機関によって異なります。
※参考数値ですので、上記の条件を保証するものではありません。
10年後のローン残高
0,000万円となります。
たとえば10年後…
仮に売却するとしたらいくらで売れると思いますか?
ゼロアパはこのような考え方も大切にしています。
※借入れ条件に変更がないことが前提です。
- 築年月
- 平成7(1995)年2月
- 専有面積
- 55.10㎡
- 土地権利
- 所有権
- 構造
- RC(鉄筋コンクリート)造
- 所在階
- 4階/5階建
- 総戸数
- 23戸
- 管理会社
- 株式会社長谷工コミュニティ
- 現況
- 空室
- 引渡し時期
- 相談
- 取引形態
- 媒介
- 特記事項
- その他費用:CATV使用料 1,000円/月
ペット飼育:可(犬猫可。1住戸2匹まで、成長時の体長が70cm以内、体高が40cm以内、体重が10kg以内。その他飼育細則有。要申請)
駐車場:有 25,000円/月
駐輪場:有 無償(原則1住戸1台まで使用可能)
バイク置場:無
※空き状況要確認
アフターサービス保証付
オートロック:有
| 住所 | 東京都世田谷区深沢5-18-12 |
|---|---|
| 交通 | 東急田園都市線「桜新町駅」 徒歩19分 東急大井町線「上野毛駅」 徒歩22分 東急大井町線・東横線「自由が丘駅」バス14分 バス停「深沢坂下」徒歩8分 |
東京の高級住宅街のひとつ、「世田谷区深沢」のリフォーム物件をご紹介します。
深沢は、周囲を世田谷区等々力・中町、目黒区八雲といった高級住宅街に囲まれ、桜並木が続く呑川親水公園・呑川緑道や、駒沢オリンピック公園も近く、自然豊かで穏やかなエリアです。
ご紹介するマンションは、田園都市線「桜新町駅」、大井町線「上野毛駅」から歩いて20分前後。
駅からは少し距離がありますが、そのぶん空が広く、ゆったりとした空気感が魅力です。
近隣には、大学や高校が多く、文教地区らしい落ち着いた雰囲気もあります。バス便も充実しており、桜新町駅のほか目黒駅、恵比寿駅など多方面へアクセスできます。
マンションは1995年築。外観、共用部分ともきれいに保たれています。
お部屋は4階、南東向きで、明るく、開放感たっぷり。バルコニーからは、世田谷らしい穏やかな街並みを見渡すことができます。
交差点に近い立地ですが、室内では車の走行音はほとんど気になりませんでした。
室内のリフォームは、2025年10月に完了したばかりです。
床材には機能性・耐久性にすぐれた素材を採用。モルタル風のおしゃれなデザインで、洗練された空間を演出しています。
ペットと一緒に暮らすことができるお部屋ですので、お手入れしやすい床は嬉しいポイントです。
キッチン、浴室、洗面室、照明器具、建具など室内設備、給水設備が交換済みで、食洗機や浴室乾燥機能など最新の機能も備わっています。
アフターサービス保証も付いています。
桜新町駅前の商店街には、スーパーや飲食店、銀行、郵便局、各種サロンやクリニックなど、生活に必要な施設がしっかり揃っています。
駅からマンションへ向かうサザエさん通りは、春になると見事な桜並木に。マンション前の駒沢通りでは、秋には紅葉したいちょう並木が美しく、季節の移ろいを身近に感じることができます。
自然と街のバランスが心地良い、深沢らしい環境です。
ペット飼育:可(犬猫可。1住戸2匹まで、成長時の体長が70cm以内、体高が40cm以内、体重が10kg以内。その他飼育細則有。要申請)



















































