販売価格6,480万円
間取り3LDK
専有面積70.72㎡


| 毎月返済額 | 管理費 | 修繕積立金 | その他 |
|---|---|---|---|
| 000,000 円 | 17,420 円 | 15,480 円 | 150 円 |
住宅ローン試算と毎月返済額
物件価格の6,480万円を、金利0.675%、借入期間35年で借入したとすると
毎月返済額000,000円となります。
※借入条件は、金融機関によって異なります。
※参考数値ですので、上記の条件を保証するものではありません。
10年後のローン残高
0,000万円となります。
たとえば10年後…
仮に売却するとしたらいくらで売れると思いますか?
ゼロアパはこのような考え方も大切にしています。
※借入れ条件に変更がないことが前提です。
- 築年月
- 平成7(1995)年10月
- 専有面積
- 70.72㎡
- 土地権利
- 所有権
- 構造
- RC(鉄筋コンクリート)造
- 所在階
- 5階/9階建
- 総戸数
- 47戸
- 施工会社
- 株式会社大林組
- 管理会社
- 野村不動産パートナーズ株式会社
- 現況
- 空室
- 引渡し時期
- 相談
- 取引形態
- 媒介
- 特記事項
- その他費用:受入町内会費 月額150円
駐車場:有(月額17,000円~18,000円/台)※空き状況要問合せ
駐輪場:有(月額100円/台)※空き状況要問合せ
エレベーター:有
オートロック:有
宅配ボックス:有
ペット飼育:不可
| 住所 | 神奈川県川崎市宮前区宮崎1-13-12 |
|---|---|
| 交通 | 東急田園都市線「宮崎台駅」 徒歩7分 |
「宮崎台駅」から徒歩7分にある、眺望に恵まれたリノベーションマンションをご紹介します。
田園都市線の各駅停車駅である宮崎台は、渋谷へは約30分、2駅隣の溝の口から急行に乗り換えれば約22分で到着します。溝の口からは南武線で川崎・立川方面、二子玉川からは大井町線で自由が丘・品川方面へもスムーズにアクセスできますので、都心部への移動や通勤通学には便利な立地です。
駅前にはスーパーの東急ストア、少し離れるとオーケーストアやロピアがあります。駅周辺には、飲食店、医療機関など生活利便施設があり、徒歩圏内には公園や教育施設も点在しています。「電車とバスの博物館」という、鉄道やバスの歴史を学べる施設があり、小さなお子さん連れもたくさんいらっしゃいます。ファミリー層を中心に人気が高く、落ち着いた住宅街に囲まれ、利便性と住みやすさを兼ね備えたエリアです。
ご紹介のマンションへは、南口を出て宮崎第一公園沿いのカーブを進んでいき、路地を少し入ると到着です。このあたりは坂が多いエリアで知られていますが、道中は緩やかな坂なのでそんなに負担ではありませんでした。歩いていると本当に静かでのどかな空気。住みやすそうだなと感じました。
丘の上に建っているので、実はエントランスは6階。エレベーターで5階を押すと下にさがるので、初めての方は驚きますよ。外観・エントランス・共用部は、清潔に管理されていました。
お部屋は5階、南向き。まず見たいのはバルコニーからの眺望。目の前に遮るぎるものがなく、景色は開放感に溢れていました。洗濯物も良く乾きそう。窓越しからでもすばらしい眺望が目に入ってきます。外を見ているだけで癒されるので、気持ちよく毎日が過ごせそうです。
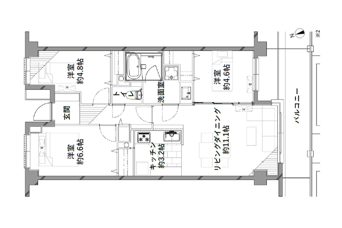
間取りは、70.72㎡の3LDK。室内はおしゃれにリノベーションされています。リビングと4.6帖の洋室はガラス戸で仕切られているので、閉めても暗さや狭くなった感じにはなりません。キッチンの側面はグレーのタイルで装飾され、備え付けの棚もあり、インテリアのアクセントにもなっています。
設備面では、食洗機付きのシステムキッチン、乾燥換気暖房機能付きのバスルームなど、リノベーション工事で快適な生活のための設備が整っていました。
日常の中に癒しが欲しい、落ち着いた生活環境で暮らしたい、
そんなご希望がある方にぜひご検討いただきたいマンションです。
ペット飼育:不可













































