販売価格5,480万円
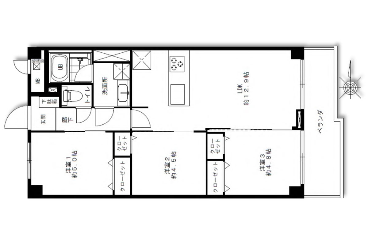
間取り3LDK
専有面積57.78㎡


| 毎月返済額 | 管理費 | 修繕積立金 | その他 |
|---|---|---|---|
| 000,000 円 | 13,248 円 | 10,725 円 | 0 円 |
住宅ローン試算と毎月返済額
物件価格の5,480万円を、金利0.875%、借入期間35年で借入したとすると
毎月返済額000,000円となります。
※借入条件は、金融機関によって異なります。
※参考数値ですので、上記の条件を保証するものではありません。
10年後のローン残高
0,000万円となります。
たとえば10年後…
仮に売却するとしたらいくらで売れると思いますか?
ゼロアパはこのような考え方も大切にしています。
※借入れ条件に変更がないことが前提です。
- 築年月
- 昭和53(1978)年5月
- 専有面積
- 57.78㎡
- 土地権利
- 所有権
- 構造
- SRC(鉄骨鉄筋コンクリート)造
- 所在階
- 2階/11階建
- 総戸数
- 212戸
- 施工会社
- 鹿島建設株式会社、三井建設株式会社
- 分譲会社
- 太平洋興発株式会社
- 管理会社
- 太平洋興発株式会社
- 現況
- 空室
- 引渡し時期
- 相談
- 取引形態
- 媒介
- 特記事項
- ペット飼育:可(飼育細則有)
駐車場:有(月額22,000円)
バイク置場:有(年額5,000円)
自転車置場:有(年額3,000円)
エレベーター:有
事務所利用:不可
住宅宿泊事業:不可
TV共聴設備:共同アンテナ方式
衛星放送設備:BSデジタル/110度CS
インターネット設備:フレッツ光ネクスト(VDSL方式)光回線NTT網/ニューロ網引込済(個別契約)
宅配ボックス:無
| 住所 | 東京都世田谷区上用賀2-3-1 |
|---|---|
| 交通 | 東急田園都市線「用賀駅」 徒歩20分 小田急線「千歳船橋駅」 徒歩19分 東急世田谷線「上町駅」 徒歩19分 |
JRA馬事公苑に隣接するヴィンテージマンションをご紹介します。
築年は1978年。建物はもちろん、エントランスや廊下などの共用部分や敷地内の木々にいたるまで、しっかりと手入れが行き届き、美しく保たれています。
管理の方が常駐され、丁寧に対応してくださるところも魅力のひとつです。
周辺にはファミリーレストランやドラッグストアなど、普段使いのお店があるのも嬉しいポイント。
マンション前のけやき広場は、のんびりと散歩や森林浴を楽しむ方々、自転車の練習やボール遊びを楽しむ子供たちの姿も見られ、清々しい憩いの場になっています。
ご紹介するお部屋は2階、間取りは3LDK。スライドドアを開けて、広々とした2LDKとして利用することもできます。
バルコニー前にはけやきの大木があり、窓を開けると、さわやかな風が通り抜けます。
東向きのお部屋ですが、早い時間から朝日が差し込むため、寒い季節には朝の冷え込みをやわらげ、夏は比較的涼しいといわれています。
毎朝、快適に一日を始めることができそうです。
室内のリノベーションは2025年10月に完了したばかりで、新築感覚で入居できます。
システムキッチンやユニットバス、洗面化粧台、トイレはすべて新しく交換され、食洗機や浴室乾燥、追い焚き機能など最新設備が整っています。
フローリングやクロス、建具も一新され、照明、モニター付きインターホンも設置済みです。
ペットと暮らすこともできます(飼育細則有)。
マンション前のバス停からは「渋谷駅」「三軒茶屋駅」、別のバス停からは「用賀駅」までアクセスが可能です。
都内のバス網はとても優秀。交通事情や天候によって、うまく利用すると、楽に移動することができます。
徒歩、または自転車を利用するなら、田園都市線「用賀駅」、小田急線「千歳船橋駅」がおすすめです。
どちらも商店街が充実していて、大型スーパーなど毎日のお買い物ができるお店に加えて、隠れ家のような、実力派のビストロやカフェも点在しています。生活便利施設も揃っています。
千歳通りの見事な桜並木や、用賀七条通り、用賀中町通りなど、街並みの美しさにも癒されます。
取材時は雨上がりで、けやき広場はしっとりとした緑と澄んだ空気に満ちていました。緑溢れる住環境を満喫することができます。
ペット飼育:可(飼育細則有)











































