販売価格8,680万円
間取り3LDK
専有面積72.10㎡


| 毎月返済額 | 管理費 | 修繕積立金 | その他 |
|---|---|---|---|
| 000,000 円 | 12,940 円 | 18,500 円 | 3,100 円 |
住宅ローン試算と毎月返済額
物件価格の8,680万円を、金利0.875%、借入期間35年で借入したとすると
毎月返済額000,000円となります。
※借入条件は、金融機関によって異なります。
※参考数値ですので、上記の条件を保証するものではありません。
10年後のローン残高
0,000万円となります。
たとえば10年後…
仮に売却するとしたらいくらで売れると思いますか?
ゼロアパはこのような考え方も大切にしています。
※借入れ条件に変更がないことが前提です。
- 築年月
- 昭和54(1979)年7月
- 専有面積
- 72.10㎡
- 土地権利
- 所有権
- 構造
- RC(鉄筋コンクリート)造
- 所在階
- 3階/6階建
- 総戸数
- 22戸
- 施工会社
- 協和建設株式会社
- 管理会社
- 日本ハウズイング株式会社
- 現況
- 空室
- 引渡し時期
- 相談
- 取引形態
- 媒介
- 特記事項
- その他費用内訳:自主管理組合費月額3,000円、町内会費月額100円
駐車場:無
駐輪場:有(空き状況要確認)年間3,000円
バイク置場:有(空き無し)
全住戸の玄関扉改修予定あり
ペット飼育:不可
エレベーター:有
オートロック:無
| 住所 | 東京都目黒区八雲1丁目4−6 |
|---|---|
| 交通 | 東急東横線「都立大学駅」 徒歩3分 |
東急東横線「都立大学」駅から徒歩3分、ファミリー向けリノベーションマンションのご紹介です。
都立大学駅は、渋谷まで約11分という都心への近さが魅力。自由が丘・中目黒・横浜方面へのアクセスはもちろんのこと、東京メトロ副都心線・東武東上線・西武線への直通運転があり、現在は埼玉方面への移動も便利です。
駅周辺にはスーパーやドラッグストア、飲食店が揃い、日々の買い物には困りません。忙しい子育て世帯でも無理のない生活動線が実現します。一方で、駅から少し離れると閑静な住宅街、公園や緑も身近にあり、家族でのびのびと過ごせる空気感。都心に近い利便性と家族で安心して暮らせる環境を両立した、ファミリーにちょうどいい街です。
今回ご紹介のマンションへは、駅北口を出て、目黒通りに向かって歩き、交差点を渡って左に曲がれば到着です。
1階は店舗、和菓子屋さんとオーガニック食材がメインのスーパーマーケットが入っています。エントランスは路地を少し入ったところにあるので、通行人からの目線が気になりにくくなっていました。
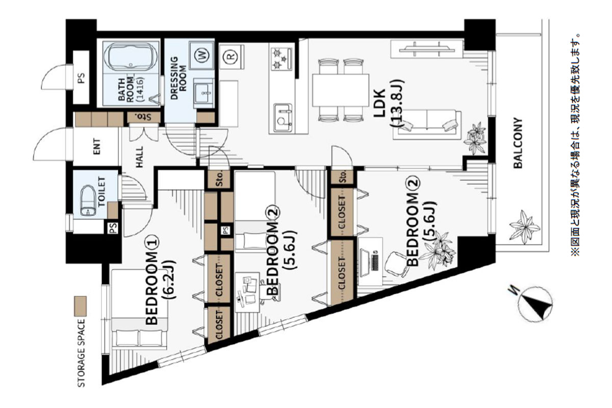
お部屋は3階、間取りは72.10㎡の3LDK。南西向きの角部屋で、日当たりの良いリビングです。
ヴィンテージマンション特有の窓が多い造りのため、各洋室の窓を開ければ通風も良好です。
室内のリノベーション工事は、2025年12月に完了済み。食洗機付きのシステムキッチン、追焚き機能・浴室乾燥機付きのユニットバスなどの水回りが交換され、全室のフローリングやクロスの張り替えも行われています。
たっぷりの収納スペースや飾り棚、エントランス横の洋室にはデスクとして使用できる棚もすでに備わっており、その分空間を有効に使うことができそうです。
少し気になったのは各洋室が台形であること。また、バルコニーの前が目黒通りにかかる歩道橋となっていることです。横断歩道もあるので日中の歩行者は少なかったのですが、通勤通学時間帯は人通りが増えるかもしれません。ぜひ現地でお確かめ頂ければと思います。
満員電車に毎日長時間乗車するのは、誰でも疲れてしまいますよね。
「通勤や通学の負担を少しでも軽減したい」そんなファミリーにおすすめのリノベーションマンションのご紹介でした。
ペット飼育:不可



















































