販売価格5,180万円
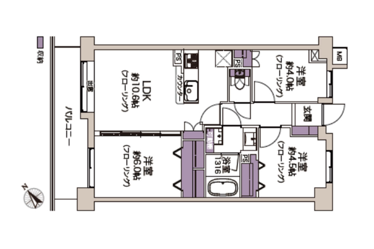
間取り3LDK
専有面積56.31㎡


| 毎月返済額 | 管理費 | 修繕積立金 | その他 |
|---|---|---|---|
| 000,000 円 | 12,900 円 | 12,770 円 | 0 円 |
住宅ローン試算と毎月返済額
物件価格の5,180万円を、金利0.675%、借入期間35年で借入したとすると
毎月返済額000,000円となります。
※借入条件は、金融機関によって異なります。
※参考数値ですので、上記の条件を保証するものではありません。
10年後のローン残高
0,000万円となります。
たとえば10年後…
仮に売却するとしたらいくらで売れると思いますか?
ゼロアパはこのような考え方も大切にしています。
※借入れ条件に変更がないことが前提です。
- 築年月
- 平成7(1995)年3月
- 専有面積
- 56.31㎡
- 土地権利
- 所有権
- 構造
- RC(鉄筋コンクリート)造
- 所在階
- 2階/5階建
- 総戸数
- 73戸
- 施工会社
- 株式会社熊谷組
- 管理会社
- 住友不動産建物サービス株式会社
- 現況
- 空室
- 引渡し時期
- 相談
- 取引形態
- 媒介
- 特記事項
- 駐車場:有(空有、月額23,000円)
駐輪場:有(空有、月額200円)
バイク置場:有(空有、月額300円)
エレベーター:有
オートロック:有
宅配ボックス:有
ペット飼育:可(他の居住者に鳴声・臭気等により迷惑等を及ぼすおそれのある動物は不可。※管理規約に基づく)
| 住所 | 神奈川県川崎市宮前区小台2-7-13 |
|---|---|
| 交通 | 東急田園都市線「宮前平駅」 徒歩2分 |
田園都市線「宮前平駅」徒歩2分、駅近リノベーションマンションをご紹介します。
最寄りの宮前平駅は、電車で二子玉川駅まで13分、渋谷駅までは約30分でアクセス可能。のんびりした雰囲気で治安が良く、子育て支援も充実している地域であることから、ファミリー層を中心に人気の街です。
改札前にはスーパーの東急ストア、駅近辺にはいなげや、成城石井があり、少し離れるとロピアなどの大型スーパーがあります。田園都市線とクロスするように通っている尻手黒川道路沿いには、ロードサイドの飲食店が多々あり、夕方になると平日でも多くのファミリーで賑わっています。
物件までのルートは、駅南口を出て宮前平ガード下交差点を渡り、メディカルモール横の坂を少し進むと到着です。坂といっても駅から徒歩2分なので負担は少なかったです。前面道路はそんなに大きな道路ではありませんが旧大山街道とのこと、歴史を感じます。
エントランスを入ると目の前には階段があり、このマンションの1階部分に出られるようになっていました。1階部分には遊具のある公園、その先には学習塾などが入っている店舗があり、マンションの敷地内で子ども達の日常が完結可能。帰宅時間が合わずちょっと待っていてほしいという時、敷地内の公園で遊んで待っていてくれると助かりますよね。お子さんがいるファミリーにはとてもうれしい施設です。取材した日はちょうど小・中学生の帰宅時間で、子ども達が公園のベンチに座っておしゃべりを楽しんでいました。
ご紹介のお部屋は2階、56.31㎡の3LDK。使いやすいシンプルな間取りです。間取りにしては広さが少しコンパクトだなと思いましたが、リビング横の6.0帖洋室の扉を開けると開放感を感じることができます。窓が北西向きで、日当たりはそんなに感じられませんでしたが、薄暗さはなかったです。
室内は2025年12月にリフォーム済みで、建具やクロス、フローリングも交換済み。水回りがお部屋の真ん中に配置されていて、生活動線が良さそうな間取りだなと感じました。設備としては、乾燥機付食洗器、浴室は追いだき機能・浴室換気乾燥機付きなど充実していました。
こちらのマンションは駅近で、窓から線路が見えるだけあり、電車が通るたびに室内でも音が聞こえてきました。駅のアナウンスや発車ベルの音ではなく、主に急行電車の通過音のように思います。許容できるかは個々の判断になるかと思いますので、現地でお確かめいただけたらと思います。
ペット飼育:可(他の居住者に鳴声・臭気等により迷惑等を及ぼすおそれのある動物は不可。※管理規約に基づく)













































