販売価格2,680万円
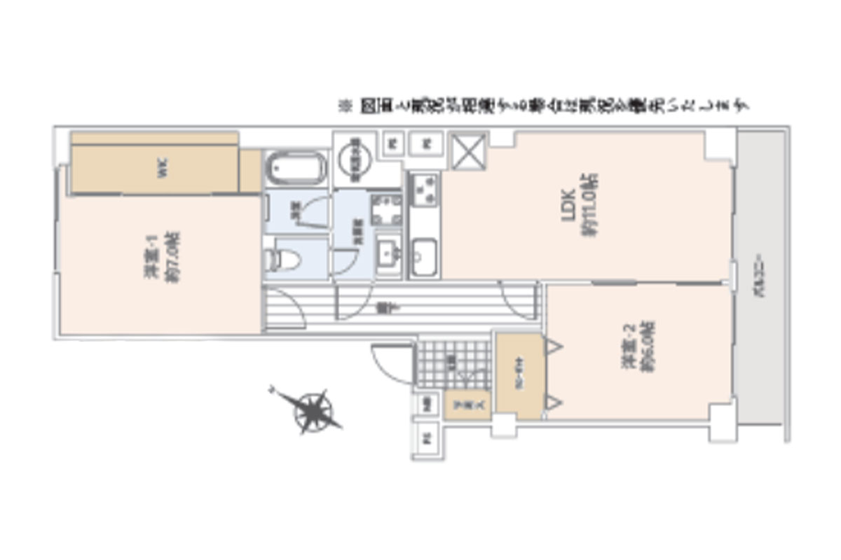
間取り2LDK
専有面積63.90㎡


| 毎月返済額 | 管理費 | 修繕積立金 | その他 |
|---|---|---|---|
| 000,000 円 | 13,700 円 | 13,610 円 | 0 円 |
住宅ローン試算と毎月返済額
物件価格の2,680万円を、金利0.875%、借入期間35年で借入したとすると
毎月返済額000,000円となります。
※借入条件は、金融機関によって異なります。
※参考数値ですので、上記の条件を保証するものではありません。
10年後のローン残高
0,000万円となります。
たとえば10年後…
仮に売却するとしたらいくらで売れると思いますか?
ゼロアパはこのような考え方も大切にしています。
※借入れ条件に変更がないことが前提です。
- 築年月
- 昭和53(1978)年11月
- 専有面積
- 63.90㎡
- 土地権利
- 所有権
- 構造
- RC(鉄筋コンクリート)造
- 所在階
- 1階/4階建
- 総戸数
- 25戸
- 施工会社
- 株式会社長谷川工務店
- 分譲会社
- 柳澤電機株式会社
- 管理会社
- 株式会社東急コミュニティー
- 現況
- 空室
- 引渡し時期
- 相談
- 取引形態
- 媒介
- 特記事項
- 「宮前区役所前」停留所まで徒歩3分
駐車場:空無(月額15,000円)
駐輪場:空無(月額300円)
バイク置場:空無(月額500円~1,500円)
ペット飼育:不可
オートロック:無
| 住所 | 神奈川県川崎市宮前区土橋1‐9‐7 |
|---|---|
| 交通 | 東急田園都市線「宮前平駅」 徒歩7分 |
田園都市線の宮前平駅から歩いて7分にある、リノベーション物件をご紹介いたします。
宮前平駅周辺は穏やかな空気で治安が良く、いなげや、成城石井といったスーパーや、駅の近くに温泉もあって、ファミリー層を中心に人気の街。少し離れるとロピアやオーケーストアなどの大型スーパーがいくつかあります。電車で二子玉川駅まで10分、渋谷駅までは26分程でアクセスができます。
ご紹介のマンションへは、北口を出てマツモトキヨシの前の道をまっすぐ進み、土橋神社あたりで右折、その先の保育園方面にもう少し上っていくと到着です。序盤はかなり緩やかな上り坂ですが、住宅街に入ると少し急な坂になります。
お部屋は1階で、バルコニーの前には公開緑地の公園がありました。部屋の前は開けているので、1階ではあるものの日当たりは良好。玄関扉付近でモーター音がしていたのですが、室内に入り扉を閉めるとあまり気になるほどの音量ではありませんでしたが、開けると結構大きな音でしたので、許容の範囲かは現地でお確かめいただければと思います。
間取りは63.90㎡の2LDK。室内はリフォーム済みで、建具やクロス、フローリングも交換済み。玄関と水回りがお部屋の真ん中に配置されています。設備としては、食洗器付システムキッチン、浴室は追焚・換気乾燥暖房機能付きなど充実していました。洋室には大きなウォークインクローゼットがあり、かなり多くの衣類が収納可能だと思います。
共用部にはベビーカーや子供用自転車等がありましたので、小さなお子さんのいる世帯が多く住まわれているのだと思います。
「値段は抑えて自宅を買いたい」というファミリーにおすすめの物件です。
※ペット飼育:不可







































