販売価格6,180万円
間取り1LDK
専有面積48.60㎡


| 毎月返済額 | 管理費 | 修繕積立金 | その他 |
|---|---|---|---|
| 000,000 円 | 12,800 円 | 12,800 円 | 0 円 |
住宅ローン試算と毎月返済額
物件価格の6,180万円を、金利0.875%、借入期間35年で借入したとすると
毎月返済額000,000円となります。
※借入条件は、金融機関によって異なります。
※参考数値ですので、上記の条件を保証するものではありません。
10年後のローン残高
0,000万円となります。
たとえば10年後…
仮に売却するとしたらいくらで売れると思いますか?
ゼロアパはこのような考え方も大切にしています。
※借入れ条件に変更がないことが前提です。
- 築年月
- 昭和54(1979)年8月
- 専有面積
- 48.60㎡
- 土地権利
- 所有権
- 構造
- RC(鉄筋コンクリート)造
- 所在階
- 1階/5階建
- 総戸数
- 40戸
- 施工会社
- 日東建設株式会社
- 管理会社
- 朝日管理株式会社
- 現況
- 空室
- 引渡し時期
- 相談
- 取引形態
- 媒介
| 住所 | 東京都世田谷区奥沢6-30-1 |
|---|---|
| 交通 | 東急東横線・大井町線「自由が丘駅」 徒歩4分 東急大井町線「九品仏駅」 徒歩6分 東急目黒線「奥沢駅」 徒歩10分 |
「自由が丘駅」徒歩4分、「九品仏駅」徒歩6分、「奥沢駅」徒歩10分、
3駅3路線利用可能なヴィンテージマンションをご紹介します。
自由が丘駅は、東急東横線と大井町線が乗り入れており、東横線を利用すれば渋谷まで約10分、横浜方面へも直通で移動可能。大井町線を使えば二子玉川や大井町方面へもスムーズに行くことができます。東急目黒線の奥沢駅も利用可能なので、目黒方面や南北線利用の方にも便利な立地です。
駅周辺にはスーパーやドラッグストア、個性的な飲食店や、おしゃれなカフェなど生活利便施設が点在し、日々の買い物にも困りません。通勤・通学の利便性と、住環境のバランスを求める方におすすめです。
物件のアドレスは奥沢。にぎわいのある自由が丘の街並みを身近に感じながらも、閑静な住宅街が広がる暮らしやすいエリアです。玉川聖学院という学校前にある踏切の近くにあるのが今回ご紹介のマンションです。自由ヶ丘駅南口をご利用であれば、踏切は渡らないで済むのでご安心ください。
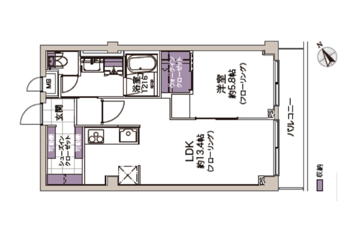
お部屋は1階、間取りは48.60㎡の1LDK。
ベージュとグレーが基調となっている落ち着いた雰囲気のLDK。おしゃれな壁のデザインを間接照明がさらに引き立てていました。ホームステージングされているので、インテリアがイメージしやすいと思います。
バルコニー前には植栽があるので、1階でも周囲からの視線は気になりません。目隠しがある分、日当たりの良さはあまり感じられませんでしたが、建物同士が密集していないので、窮屈さや薄暗さは感じませんでした。
室内はリノベーション済み。浄水器と食器洗い乾燥機付きのシステムキッチン、追焚機能・浴室換気乾燥機付きのユニットバスなどの水回りが交換され、フローリングやクロス等の張り替えも行われています。
収納は、ウォークインクローゼットのほか、玄関横にオープンスタイルのシューズインクローゼットが設置されています。収納力抜群なのはもちろんのこと、飲料水のストックなんかも置いておけるので、とても便利ですね。
先にも述べたように踏切近くのマンションですが、お部屋の向きは踏切とは逆側です。電車や踏切の音は、室内にいるとほとんどわからないレベルでした。時間帯であったり、感じ方に個人差があるので、ぜひ現地でお確かめ頂きたいと思います。
駅近で利便性を求めつつ、穏やかな住環境をお探しの方におすすめしたいマンションでした。
ペット飼育:不可





































