成約済み


| 毎月返済額 | 管理費 | 修繕積立金 | その他 |
|---|---|---|---|
| 000,000 円 | 19,400 円 | 14,940 円 | 0 円 |
住宅ローン試算と毎月返済額
物件価格の5,899万円を、金利0.675%、借入期間35年で借入したとすると
毎月返済額000,000円となります。
※借入条件は、金融機関によって異なります。
※参考数値ですので、上記の条件を保証するものではありません。
10年後のローン残高
0,000万円となります。
たとえば10年後…
仮に売却するとしたらいくらで売れると思いますか?
ゼロアパはこのような考え方も大切にしています。
※借入れ条件に変更がないことが前提です。
- 築年月
- 平成17(2005)年11月
- 専有面積
- 77.13㎡
- 土地権利
- 所有権
- 構造
- RC(鉄筋コンクリート)造
- 所在階
- 1階/7階建
- 総戸数
- 163戸
- 管理会社
- 住友不動産建物サービス株式会社
- 現況
- 空室
- 引渡し時期
- 相談
- 取引形態
- 媒介
- 特記事項
- 駐車場:月額11,000円~16,500円
駐輪場:月額500円
バイク置場:月額1,000円
コンシェルジュ常駐
アフターサービス保証付
LDKにワークスペース設置可能
ペット飼育:可(犬及び猫)※成長時で40㎝以内、体重10kg以内いずれか1匹まで、籠もしくは水槽内で飼育出来る小動物は2匹まで、鳥は1籠
| 住所 | 神奈川県川崎市高津区北見方2-6-30 |
|---|---|
| 交通 | 東急田園都市線「高津駅」 徒歩14分 東急田園都市線「二子新地駅」 徒歩15分 |
東急田園都市線「高津駅」から徒歩14分のすてきなリノベーションマンションをご紹介します。
おしゃれな二子玉川とにぎやかな溝の口の間にある「高津駅」。渋谷駅まで約20分、半蔵門線直結で永田町や大手町、錦糸町方面まで乗り換えなしでアクセスできます。隣駅の溝の口からは、東急大井町線、JR南武線も利用できる便利な場所です。
駅を降りると、ホッとするようなゆったりとした空気。繁華街ほどざわざわしていないけれど、毎日に必要なお店は揃っています。地元ならではのベーカリーや飲食店も点在。自転車の利用者が多く、線路の高架下が広く駐輪場になっています。物件から同等の距離にある「二子新地駅」も駅前が商店街になっているので、お惣菜やさんや居酒屋さんなど、高津駅とは違うラインナップのお店を楽しむことができます。
高津エリアの魅力のひとつは、多摩川まで歩いてすぐというロケーション。川沿いの土手道はジョギングや散歩を楽しむ人が多く、晴れた日には富士山が顔をのぞかせることも。
多摩川は地域の人たちが心癒される大切な場所です。
物件は、高津駅を降りて武蔵小杉方面へ府中街道に沿って進むこと14分。
住友不動産の旧分譲パークスクエアシリーズ。2005年築の総戸数163戸のビッグコミュニティなだけに、エントランス横にはコンシェルジュが常駐しています。共用部にはソファスペースがあり、清潔に管理されている印象を持ちました。
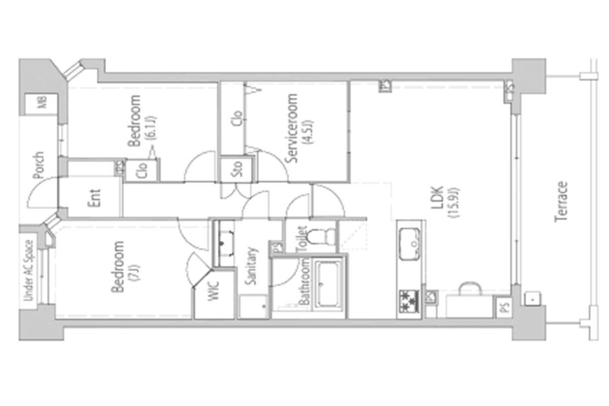
お部屋は1階にある111号室、3LDK。エントランスの自動ドアから一番近くのお部屋です。そのため、人の往来はありますが、ドアの真正面から少しずれて渡り廊下となっており、開ける度に家の中が見えてしまうようなことはなさそうです。1階住戸は利点もあり、急いでいてもすぐに出かけられますし、下層住戸への騒音の心配もしなくて大丈夫。小さなお子さんがいるファミリーにはもってこいです。
室内はリビングの大きな窓から入る木洩れ日で落ち着いた空間となっていました。
2025年7月にリフォーム済み。設備は食洗器、追い焚き機能、浴室乾燥機など充実しています。アフターサービス保証もついています。白い壁に木目と黒がアクセントのすてきな内装。キッチンからはリビングが見渡せ、リビングと接しているサービスルームの壁には室内窓が設置されていました。家族の気配を感じながら家事をすることができますね。
こちらの物件は1階ですが、たっぷりの植栽で外からも中からも目線はほぼ気になりません。リビングは二重窓になっていて静かな空間となっていました。ただ、テラスの向こう側が公園になっていて、その先が道路となっています。府中街道は通勤時間帯は交通量が多めの道路になります。現地で確かめてご検討いただければと思います。
ペット飼育:可(犬及び猫)※成長時で40㎝以内、体重10kg以内いずれか1匹まで、籠もしくは水槽内で飼育出来る小動物は2匹まで、鳥は1籠












































