成約済み


| 毎月返済額 | 管理費 | 修繕積立金 | その他 |
|---|---|---|---|
| 000,000 円 | 21,090 円 | 23,250 円 | 1,200 円 |
住宅ローン試算と毎月返済額
物件価格の6,499万円を、金利0.675%、借入期間35年で借入したとすると
毎月返済額000,000円となります。
※借入条件は、金融機関によって異なります。
※参考数値ですので、上記の条件を保証するものではありません。
10年後のローン残高
0,000万円となります。
たとえば10年後…
仮に売却するとしたらいくらで売れると思いますか?
ゼロアパはこのような考え方も大切にしています。
※借入れ条件に変更がないことが前提です。
- 築年月
- 昭和62(1987)年2月
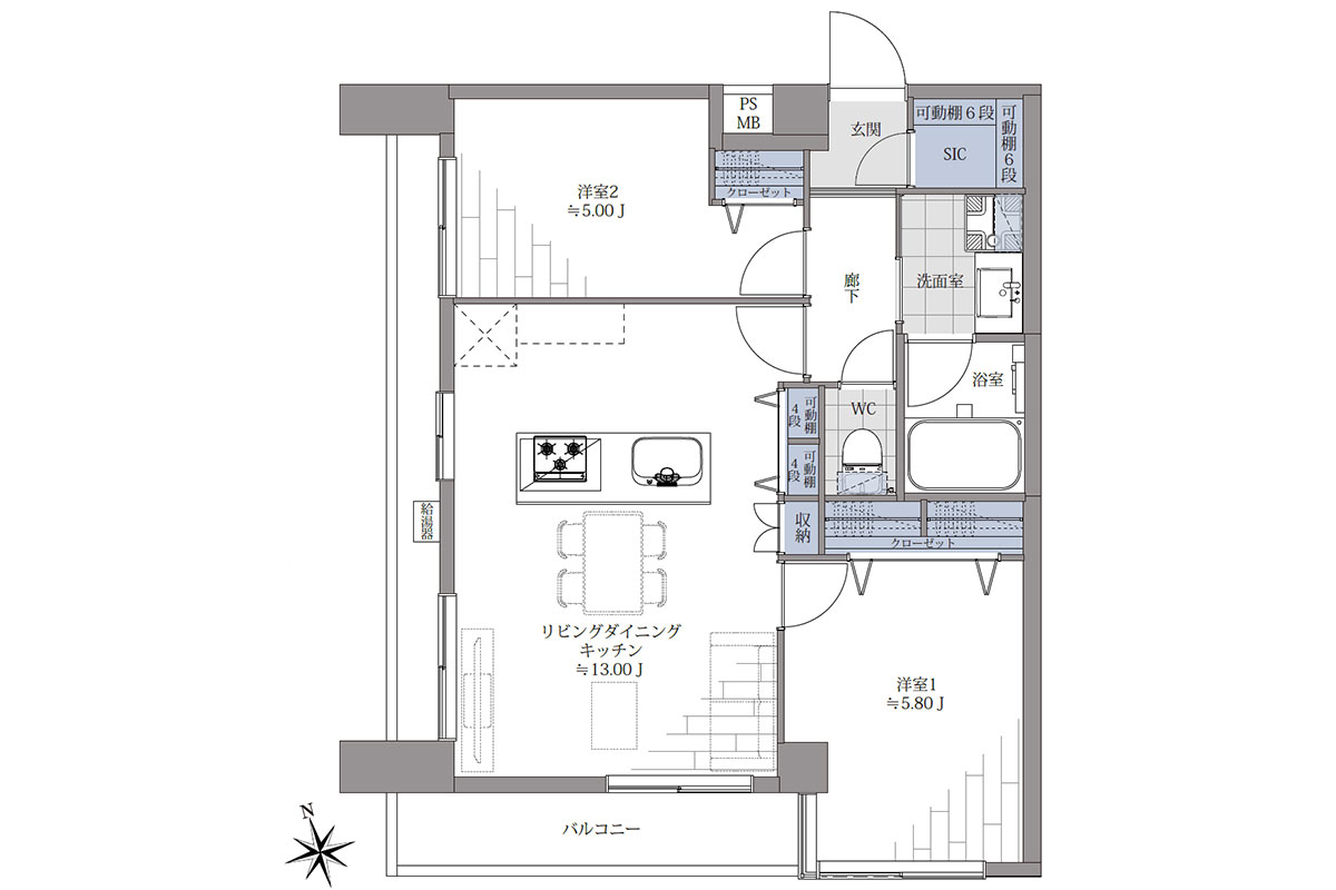
- 専有面積
- 54.08㎡
- 土地権利
- 所有権
- 構造
- RC(鉄筋コンクリート)造
- 所在階
- 4階/6階建
- 総戸数
- 34戸
- 施工会社
- 株式会社冨士工
- 管理会社
- 株式会社東急コミュニティー
- 現況
- 空室
- 引渡し時期
- 相談
- 取引形態
- 媒介
- 特記事項
- その他費用:特別管理費(月額1,200円)
ペット飼育:不可
駐車場:有(月額25,000円)
駐輪場:有(月額200~300円)
バイク置場:有(月額2,000円)
※空き状況要確認
設備:エレベーター、オートロック
| 住所 | 東京都杉並区西荻北4-8-2 |
|---|---|
| 交通 | JR中央総武線「西荻窪駅」 徒歩7分 |
JR中央総武線「西荻窪駅」徒歩7分のヴィンテージマンションをご紹介します。
西荻窪駅は、新宿から快速で約12分、人気の吉祥寺へも一駅の好立地です。
駅周辺には昔ながらの商店街が広がり、毎日のお買い物や食事もじゅうぶんに楽しめます。吉祥寺ほどの混雑はなく、落ち着いた雰囲気が漂い、住みやすい街としても注目されています。
ご紹介するマンションへは、西荻一番街を通って向かいます。生活に溶け込んだお店が多く、何十年、何代と続く老舗と、新しい店舗が混在しているところが魅力です。食堂や惣菜店、アートギャラリー、古本屋など、ふらっと立ち寄りたくなる個性豊かなお店が並んでいます。
また、車道と歩道がきちんと分けられ、安全面にも配慮されているのも嬉しいポイントです。
夜道を照らす街路灯の灯りは、商店会が長年守り続けてきたもので、今の街路灯は4代目だそう。仕事帰りの夜道も、優しい灯りに迎えられ、ホッと和みそうですね。
マンションは1987年築、外観・共用部分とも清潔に保たれた建物です。
お部屋は4階、間取りは2LDK。南向きの角住戸です。商店街のなかにあり、車や通行人も多い場所ですが、室内では環境音はほどんと気になりませんでした。
西側にも窓があり、明るく、とても落ち着くお部屋です。
リノベーションは2025年10月に完了したばかりで、フローリングや壁・天井クロス、建具、水回りがすべて一新され、新築同様に快適です。
浄水器・食洗器付きのシステムキッチン、追焚き・暖房乾燥機能付きのユニットバスなど、便利な設備も備えています。
エントランスはオートロック完備、親しみやすい管理スタッフさんがいらっしゃるのも嬉しいですね。いざという時にも気軽に相談できそうです。
土・日曜日は、中央線快速が休日運転になり、西荻窪駅には停車しません。
そのぶん、周辺の快速停車駅に比べると人出は少なく、のんびりとお買い物や散策を楽しめる穴場とも言えます。
余談ですが、善福寺川周辺では、縄文時代の土器が出土しています。なかでも「顔面把手付釣手形土器」は、国の重要文化財に指定されている貴重な土器。流鏑馬でも有名な井草八幡宮に保管されています。
善福寺池の誕生伝説には源頼朝公が登場。江戸時代には、徳川家と縁の深い駿河・今川家の所領となっていました。「杉並区今川」の由来ですね。歴史ロマン溢れる土地柄でもあります。
雑貨屋やアンティークショップ、古書店やレコード屋、各国料理店や喫茶店、飲み屋街、善福寺公園や桃井原っぱ公園と、魅力が盛りだくさんです。
こだわりの雑貨探しや、喫茶店・カフェ巡り、緑豊かな公園や歴史探訪まで、長く暮らしながら楽しみたい街です。
ペット飼育:不可









































