販売価格7,299万円
間取り3LDK
専有面積82.36㎡


| 毎月返済額 | 管理費 | 修繕積立金 | その他 |
|---|---|---|---|
| 000,000 円 | 11,500 円 | 16,100 円 | 0 円 |
住宅ローン試算と毎月返済額
物件価格の7,299万円を、金利0.875%、借入期間35年で借入したとすると
毎月返済額000,000円となります。
※借入条件は、金融機関によって異なります。
※参考数値ですので、上記の条件を保証するものではありません。
10年後のローン残高
0,000万円となります。
たとえば10年後…
仮に売却するとしたらいくらで売れると思いますか?
ゼロアパはこのような考え方も大切にしています。
※借入れ条件に変更がないことが前提です。
- 築年月
- 昭和45(1970)年7月
- 専有面積
- 82.36㎡
- 土地権利
- 所有権
- 構造
- RC(鉄筋コンクリート)造
- 所在階
- 4階/11階建
- 総戸数
- 119戸
- 施工会社
- 鹿島建設株式会社
- 分譲会社
- 株式会社フジランド
- 管理会社
- 三菱地所コミュニティ株式会社
- 現況
- 空室
- 引渡し時期
- 相談
- 取引形態
- 媒介
- 特記事項
- ペット飼育:可(犬・猫計2匹飼育可能/ペット飼育に関する遵守事項有り)
駐車場:月額9,000円(専用使用権付駐車場)
駐輪場:月額300~500円
TV共聴設備:CATV方式(イッツ・コミュニケーションズ株式会社)
インターネット設備:ソニーネットワークコミュニケーションズ(NURO光)/NTT東日本/イッツ・コミュニケーションズ(個別契約)
宅配ボックス:無
組合運営協力金:月額1,800円(外部区分所有者のみ)
| 住所 | 東京都世田谷区瀬田4-7-11 |
|---|---|
| 交通 | 東急田園都市線「二子玉川駅」 徒歩15分 |
「二子玉川駅」周辺のヴィンテージマンションのひとつ「ガーデンハウス」をご紹介します。
心地良い緑に囲まれ、まるで別荘地のような清々しい空気が漂う、閑静な住環境が魅力のヴィンテージマンションです。
マンションは昭和45年築、定期的なメンテナンスにより外観、建物内の共用部など清潔に保たれています。
広々とした敷地には平置きの駐車場と駐輪場、トランクルーム、公園も併設し、生活しやすい環境が整っています。
棟ごとにエレベーターを設置してプライバシーにも配慮されており、メインゲート前には管理の方がいらっしゃるのでセキュリティ面でも安心感があります。
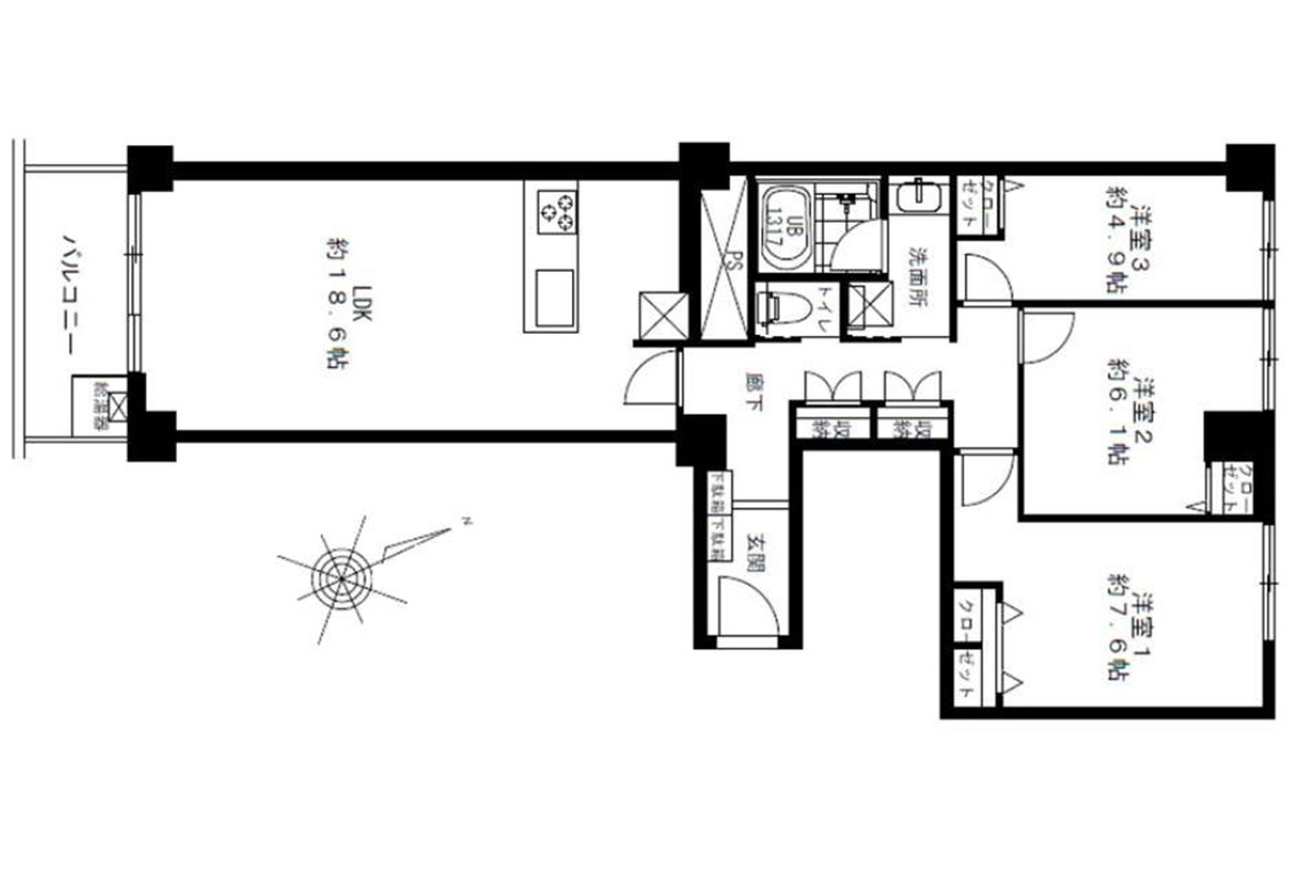
お部屋は4階、間取りは3LDKです。南東向きのバルコニーからは、木々と街を見渡すことができ、日当たりも良好です。3つの洋室にもそれぞれ窓があり、室内全体に自然光が差し込みます。
LDKは約19帖、3つの洋室にも約5帖以上の広さがあり、ゆったりと寛ぐことができる居住空間になっています。
室内のリノベーションでは、フローリングやフロアタイル、建具がすべて新しく交換され、食洗機・浄水器付きのシステムキッチン、乾燥・追い炊き機能を備えたユニットバス、シャワー水栓・ミラーキャビネット付きの洗面化粧台など、高品質・高性能の設備に一新されています。
新築感覚で、快適な暮らしを始めることができそうです。ペットと暮らすこともできます。
マンションの隣地は「旧小坂家住宅(瀬田四丁目広場)」。かつて国分寺崖線や多摩川沿いには、政財界人や華族の別邸が数多く建てられましたが、現存するのはこの旧小坂家住宅だけです。
「静嘉堂文庫」、「民家園」など歴史的価値の高い建造物が点在し、多くの財界人、文化人に愛された岡本瀬田エリアならではの趣を感じることができます。
「二子玉川駅」からは歩いて15分前後と、少し距離はありますが、この環境はとても魅力的です。ぜひ現地を訪れて、清々しい環境を体感していただきたいと思います。
ペット飼育:可(犬・猫計2匹飼育可能/ペット飼育に関する遵守事項有り)














































