販売価格4,790万円
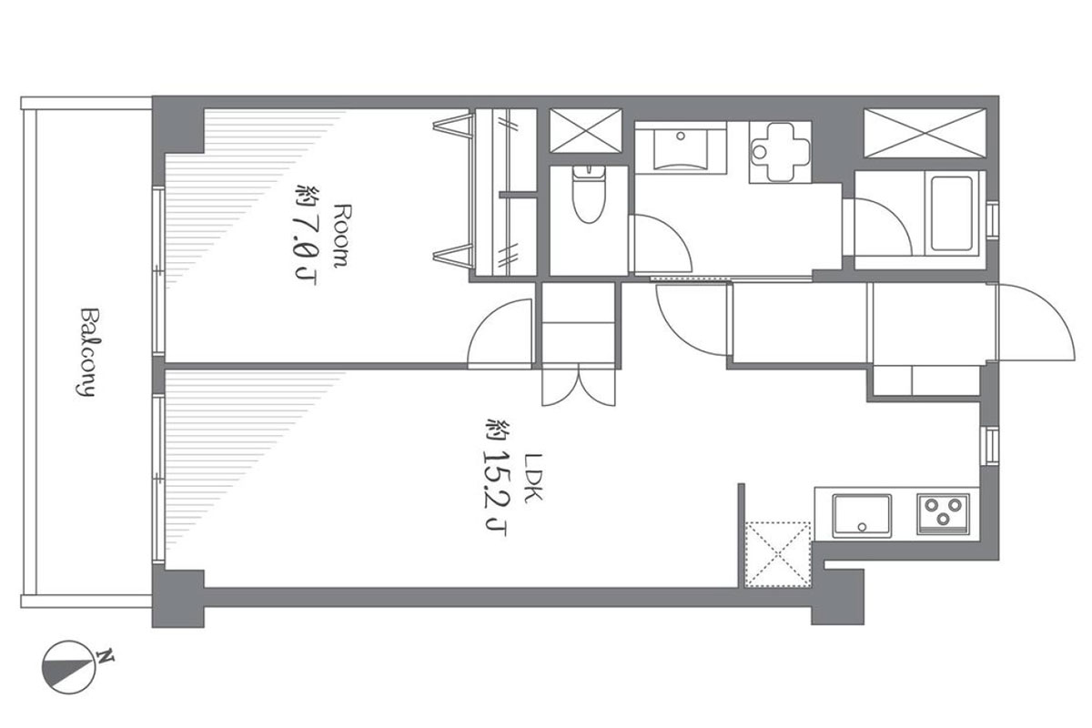
間取り1LDK
専有面積52.25㎡


| 毎月返済額 | 管理費 | 修繕積立金 | その他 |
|---|---|---|---|
| 000,000 円 | 13,773 円 | 10,638 円 | 0 円 |
住宅ローン試算と毎月返済額
物件価格の4,790万円を、金利0.875%、借入期間35年で借入したとすると
毎月返済額000,000円となります。
※借入条件は、金融機関によって異なります。
※参考数値ですので、上記の条件を保証するものではありません。
10年後のローン残高
0,000万円となります。
たとえば10年後…
仮に売却するとしたらいくらで売れると思いますか?
ゼロアパはこのような考え方も大切にしています。
※借入れ条件に変更がないことが前提です。
- 築年月
- 昭和47(1972)年5月
- 専有面積
- 52.25㎡
- 土地権利
- 所有権
- 構造
- RC(鉄筋コンクリート)造
- 所在階
- 6階/8階建
- 総戸数
- 60戸
- 施工会社
- 大日本土木株式会社
- 分譲会社
- 東海土地建物株式会社
- 管理会社
- 日本ハウズイング株式会社
- 現況
- 空室
- 引渡し時期
- 相談
- 取引形態
- 媒介
- 特記事項
- ペット飼育:不可
駐車場:空有(月額20,000円)※空き状況要確認
事務所使用:不可
共用部設備:エレベーター、宅配ボックス、防犯カメラ
アフターサービス保証付
その他費用:通信費(外部所有者)500円/月、特別負担金(輪番制の役員に就任しない場合)居住者5,000円/月・外部所有者10,000円/月
| 住所 | 東京都世田谷区経堂1-28-4 |
|---|---|
| 交通 | 小田急線「経堂駅」 徒歩5分 東急世田谷線「宮の坂駅」 徒歩12分 |
小田急線の人気駅「経堂」徒歩5分のヴィンテージマンションをご紹介します。
マンションは、農大通りから、すこし奥まった場所に位置しています。
経堂駅周辺は、にぎやかな商店街から一本奥に入るだけで、マンションや戸建てが並ぶ穏やかな住宅街に変貌するエリア。
ご紹介するマンションも、そんな静かな住宅街のなかにあり、落ち着いた環境です。
築年は1972年、2021年に大規模修繕工事がおこなわれ、外観、共用部とも清潔に保たれています。
併せて鉄骨補強、耐震スリット工事など耐震補強工事も実施済みで、安心感のある建物です。
ご紹介するお部屋は6階、開放感たっぷりの眺望と、南向きの明るい日差しが魅力です。
キッチンと浴室にも小窓があり、心地よい風が通り抜けます。
間取りは1LDK、コンパクトなつくりながら、キッチンとサニタリーエリアにはしっかりと広さが取れていて、生活動線、作業効率も良さそうです。
白を基調に優しいベージュを合わせたシンプルな内装もあいまって、快適に過ごせる空間になっています。
室内のリノベーションでは、システムキッチンやユニットバスなどの水回りや、フローリングやクロス、照明器具などが交換済みです。
食洗機付きのシステムキッチン、追い焚き機能付きのユニットバス、温水洗浄機能付きのトイレなど、快適な生活のための設備も整っています。
一方で、玄関のミルクボックスやバルコニーの物干しフックなど、レトロなディティールを残しているところも魅力のひとつです。
ヴィンテージマンション好きにはちょっとテンションが上がるポイントですね。
「経堂駅」は新宿から急行利用で10分前後、東京メトロ千代田線直結で、交通アクセスの良い駅です。
大型商業施設のほか、南北には活気あふれる商店街が広がっています。地元の方々はもちろん、学校が多いことから幅広い年齢層が集まり、いつもにぎやかです。
神社の秋祭りでは御神輿が練り歩き、「東京農業大学」が箱根駅伝に出場する際には大きな横断幕が掲げられ、街全体が華やかに盛り上がります。
路地裏には地元の老舗が佇み、どこか懐かしく温かい雰囲気が漂うのも魅力です。古書店や文具店など、長年愛され続ける有名店もあります。
狭い路地の行き止まりや、住宅街の奥に、ひっそりと隠れた名店も。「経堂迷路」と呼ばれる界隈も楽しみ尽くしたいところです。
駅前の「グリーンプロムナード」や、「北沢川緑道」、「烏山川緑道」など、雰囲気の良い街並みと自然が調和するエリアでもあります。
商店街の馬蹄をたどって進むと「JRA馬事公苑」。美しい馬たちが優雅に歩く姿や、豊かな緑を存分に楽しむことができます。
ペット飼育:不可






































